
(出典:プラウドタワー小岩フロント 公式HP)
今回は「プラウドタワー小岩フロント」を紹介します。すでに1期申し込み期間を過ぎてしまいましたが、次期販売のご参考にして下さい。
この記事の目次
物件概要・マンションの特徴
物件概要
プラウドタワー小岩フロント
東京都江戸川区南小岩6
JR総武線「小岩」駅徒歩3分
総戸数:地上33階建367戸(非分譲住戸9戸含む)
専有面積:55.76㎡~97.57㎡
駐車場:100台
売主・販売代理:三井不動産レジデンシャル
売主:野村不動産、MIRARTHホールディングス、清水建設
施工:清水建設
竣工時期:2025年11月下旬(予定)
入居時期:2026年3月下旬(予定)

(出典:プラウドタワー小岩フロント 公式HP)
「プラウドタワー小岩フロント」は、「小岩」駅南口の「南小岩六丁目地区」再開発エリアに建つ33階建てタワーマンション。
再開発エリアは、3つの街区にまたがります。
FIRSTAⅠ、商業施設「FIRSTA koiwa」
FIRSTAⅡ、商業複合タワー「プラウドタワー小岩ファースト」
FIRSTAⅢ、住宅エリア(当タワー)と商業エリア

(出典:プラウドタワー小岩フロント 公式HP)

「FIRSTA koiwa」
「プラウドタワー小岩ファースト(分譲済)」
「プラウドタワー小岩フロント」
(出典:プラウドタワー小岩フロント 公式HP)
小岩駅周辺で進む再開発事業、周辺環境については、「パークシティ小岩ザタワー」の記事もご覧ください(参考記事)。
ランドプラン・共用部
駅南口出てすぐの「FIRSTA koiwa」からエスカレーターを2階に上がって屋根付きのデッキでサブエントランスへ。2階には防災センターがあります(24時間の有人管理)。
メインのエントランスは1階。70店舗以上が入居する駅中商業施設「シャポー小岩」(徒歩1分)のA出口(東京方面側)が道路挟んで向かい側にあるので、改札出て買い物しながらほぼ傘いらずで帰れる便利さ。



エントランスホール、ラウンジは二層吹抜で、来訪者の応対などができそうな空間になりますが、コンシェルジュカウンターはありません。
主な共用施設です。
プライベートブース(2階)
コミュニティラウンジ(3階)
スカイラウンジ(31階)
ゲストルーム(31階)
先行のプラウドタワー小岩ファーストと似たような構成ですが、こちらには低層階の住人でも眺望を楽しめるスカイラウンジがあります。

(出典:プラウドタワー小岩フロント 公式HP)

(出典:プラウドタワー小岩フロント 公式HP)

(出典:プラウドタワー小岩フロント 公式HP)

(出典:プラウドタワー小岩フロント 公式HP)
制震構造の内廊下設計で、各階にトランクルーム(一部住戸に抽選で割り当て)と、ゴミ置場を設置。
エレベーターは分速210m。ファースト(22階建て)が分速105mだったので快適です。
住戸の主な設備・仕様
設備は、パークシティよりスペックが高いもの(※)を含め充実しています。
玄関カメラ付きインターフォン
TES温水式床暖房
キッチン御影石天板
食器洗い乾燥機
ディスポーザ
洗面室御影石カウンタートップ(※)
浴室ミストサウナ「MiSTY」
トイレ手洗い器・カウンタートップ(※)
ローシルエットトイレ
LD天井高約2,600mm(※)
二重床・二重天井
二重サッシ(※M・N・O・P・Q・R・S・T・U・V・Wタイプ除く)
バルコニー奥行き、1,700mm(南東向き)~1,900mm(南西向き)
など。
第1期、間取り、正式価格
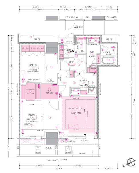
各フロアの平面図。


第1期販売住戸、正式価格です。
南西向き
A1タイプ 79.22㎡
16階 11,590万円(坪単価484万円)
18階 11,650万円(坪単価486万円)
19階 11,680万円(坪単価488万円)
20階 11,710万円(坪単価489万円)
21階 11,740万円(坪単価490万円)
22階 11,770万円(坪単価491万円)
23階 11,800万円(坪単価493万円)
24階 11,830万円(坪単価494万円)
26階 11,880万円(坪単価496万円)
27階 11,910万円(坪単価497万円)
28階 11,940万円(坪単価498万円)
30階 11,990万円(坪単価501万円)

(出典:物件エントリー限定サイト)
C1タイプ 79.36㎡
31階 11,998万円(坪単価500万円)
C2タイプ 72.70㎡
16階 8,770万円(坪単価399万円)
17階 8,800万円(坪単価400万円)
18階 8,830万円(坪単価402万円)
19階 8,860万円(坪単価403万円)
21階 8,910万円(坪単価405万円)
22階 8,930万円(坪単価406万円)
23階 8,950万円(坪単価407万円)
24階 8,970万円(坪単価408万円)
25階 8,990万円(坪単価409万円)
26階 9,010万円(坪単価410万円)
27階 9,030万円(坪単価411万円)
28階 9,050万円(坪単価412万円)
29階 9,070万円(坪単価413万円)
30階 9,090万円(坪単価414万円)

(出典:物件エントリー限定サイト)
D1タイプ 88.95㎡
31階 12,990万円(坪単価483万円)
D2タイプ 74.49㎡
16階 8,990万円(坪単価399万円)
17階 9,020万円(坪単価401万円)
18階 9,050万円(坪単価402 万円)
19階 9,080万円(坪単価403万円)
20階 9,110万円(坪単価405万円)
21階 9,130万円(坪単価405万円)
22階 9,150万円(坪単価406万円)
23階 9,170万円(坪単価407万円)
24階 9,190万円(坪単価408万円)
25階 9,210万円(坪単価409万円)
26階 9,230万円(坪単価410万円)
27階 9,250万円(坪単価411万円)
28階 9,270万円(坪単価412万円)
29階 9,290万円(坪単価413万円)
30階 9,310万円(坪単価413万円)

(出典:物件エントリー限定サイト)
E2タイプ 60.33㎡
4階 7,440万円(坪単価408万円)
5階 7,490万円(坪単価411万円)
6階 7,540万円(坪単価413万円)
7階 7,590万円(坪単価416万円)
8階 7,620万円(坪単価418万円)
9階 7,660万円(坪単価420万円)
10階 7,690万円(坪単価422万円)
11階 7,730万円(坪単価424万円)
12階 7,770万円(坪単価426万円)
13階 7,810万円(坪単価428万円)
14階 7,850万円(坪単価430万円)
15階 7,890万円(坪単価433万円)

(出典:物件エントリー限定サイト)
F1タイプ 85.36㎡
22階 12,320万円(坪単価477万円)
23階 12,350万円(坪単価478万円)
24階 12,380万円(坪単価480万円)
25階 12,410万円(坪単価481万円)
26階 12,440万円(坪単価482万円)
27階 12,470万円(坪単価483万円)
28階 12,500万円(坪単価484万円)
29階 12,530万円(坪単価485万円)
30階 12,560万円(坪単価487万円)
31階 12,590万円(坪単価488万円)

(出典:物件エントリー限定サイト)
Mタイプ 91.5㎡(駐車場・トランクルーム優先権付)
32階 18,790万円(坪単価679万円)
Nタイプ 81.92㎡(駐車場・トランクルーム優先権付)
32階 12,490万円(坪単価504万円)
33階 12,990万円(坪単価524万円)

(出典:物件エントリー限定サイト)
Oタイプ 80.74㎡(駐車場・トランクルーム優先権付)
32階 12,390万円(坪単価507万円)
33階 12,890万円(坪単価528万円)

(出典:物件エントリー限定サイト)
Pタイプ 74.52㎡(駐車場優先権付)
32階 11,390万円(坪単価506万円)
33階 11,890万円(坪単価528万円)
Qタイプ 97.57㎡(駐車場・トランクルーム優先権付)
32階 17,990万円(坪単価610万円)
33階 18,690万円(坪単価633万円)

(出典:物件エントリー限定サイト)
南東向き
G1タイプ 72.45㎡
16階 8,360万円(坪単価382万円)
17階 8,390万円(坪単価383万円)
18階 8,420万円(坪単価384万円)
19階 8,450万円(坪単価386万円)
20階 8,480万円(坪単価387万円)
21階 8,500万円(坪単価388万円)
22階 8,520万円(坪単価389万円)
23階 8,540万円(坪単価390万円)
24階 8,560万円(坪単価391万円)
25階 8,580万円(坪単価392万円)
26階 8,600万円(坪単価393万円)
27階 8,620万円(坪単価394万円)
28階 8,640万円(坪単価395万円)
29階 8,660万円(坪単価395万円)
30階 8,680万円(坪単価396万円)
31階 8,780万円(坪単価401万円)
Sタイプ 78.36㎡(駐車場優先権付)
32階 12,190万円(坪単価514万円)
33階 12,990万円(坪単価548万円)
平均坪単価は約455万円、プレミアムフロア(32階・33階住戸)を除くと約430万円でした。
第1期は92戸の売出しで、すでに7月下旬に登録が終了しました。数戸を除いてすべて申し込みが入ったようです。
パークシティ小岩ザタワーを選ぶべき?
第1期分譲が、パークシティ小岩ザタワーと同時期だったので、比較検討する問い合わせを多数いただきました。
同じ徒歩3分ですが、パークシティの方がスケールで勝ります。北口一体の開発規模、空間のゆとり、住まいの利便性、ランドマーク性が高く明らかにメリットが大きいです。
コミュニティがさかんになりそうな企画、ビジネスや商業で賑やかになりそうな点、豪華な二層吹き抜けエントランスホールやコンシェルジュカウンターがある華やかさなど、「三井に住んでいます」を実感できる、小岩No.1マンションを語り継ぎそうな存在感です。
他、プラウドと比べて優位な点。
・スーパー2店舗が住まいの足元に入居
・フィットネスルーム、ランドルーム、レンタサイクルなど充実の共用部、サービス
・ペデストリアンデッキ直結(予定)
・免震構造
・ゼッチ対応(将来的にスタンダードな住まいに。主寝室にも床暖房、住宅ローン減税優遇措置を受けられる可能性も)
・外廊下のため、窓無し部屋設定が少ない
ランニングコストは、ほぼ同じでした。修繕積立金については、プラウドが当初から多めに積み立てているかもしれず、それ自体は悪くありません。
パークシティ、71Eb、71.80㎡
管理費、32,650円
修繕積立金、9,370円
他、660円
月々合計、42,680円
修繕積立基金、937,000円
プラウド、B2タイプ、71.78㎡
管理費、31,600円
修繕積立金、14,810円
月々合計、46,410円
修繕積立基金、998,020円
同じ程度のランニングコストでも、規模感が活きているので、パークシティの方が上記のようなメリットが多く、将来的な管理、維持面も安心感が高いと感じます。
プラウドタワーを選びたい理由は?
プラウドを積極的に選ぶメリットは以下です。
・内廊下(ここはテンションが変る大きなポイント)
・南西向きが第一種住居地域の開放感(ほぼ南向きで日当たりも良好)
・入居時期が約1年早い
・価格面
・広い住戸を選べる(価格が安いから)
・天井高2,600mm(パークシティは2,550mm)

第1期の価格は、プレミアム住戸を除くとパークシティが坪単価455万円、プラウドが430万円でした。特に中住戸は坪単価50万円グロスで1千万円近く違う場合も。
(一例)
パークシティ
西向き、70Wタイプ(70.59㎡)
20階、9,760万円(坪単価457万円)
プラウド
南西向き、C2タイプ(72.70㎡)
21階、8,918万円(坪単価405万円)
パークシティの方がメリットが大きいので、この価格差をつけてきたのだと思いますが、これだけの差があるとプラウドを選びたくなります。
内廊下設計や南向きの開放感などパークシティにはないインパクトあるメリットもあるわけですから、パークシティに予算が届かなければ、決して妥協でなくプラウドを選べば良いと思います。私へのご相談も、内廊下と各フロアゴミ置き場セットの快適さから離れられないと言う人が結構いました。
内廊下で快適に、プライバシー性を確保して落ち着いて上質な生活を楽しみたい人にとっては、プラウドが向いているかもしれません。同じ価格ならゆったりめの住戸を選べるのも魅力です。パークシティは入居時期が3年後なので、ローンを組む都合や子育ての兼ね合いでプラウドを優先して検討する材料にもなるでしょう。
通学校の「下小岩小学校」までは徒歩11分ありますが、北口と違い住宅地を歩くフラットな通学路。25年4月より新校舎で学べます。放課後学童の「すくすくスクール」は共働き世帯にとって重宝する行政サービス。駅の南側は閑静な住宅地が広がり、北側のような歓楽街や大通りもありません。棟内コミュニティラウンジ内にキッズスペース、マンションの近くに複数の公園もあるので、子育て環境は良好と言えます。
まとめ、最後に
江戸川区の新築が、坪単価400万円以上で数戸除いて申し込みが入ったのは、かなり売れ行きが良いと思いました。

(出典:プラウドタワー小岩フロント 公式HP)
ただ、沿線では、築3年のプラウドタワー亀戸クロスが坪単価500万円を大きく超えてきています。他エリアでも、北区や大田区の新築タワーが坪単価600万円前後で分譲されている中、街がまだまだ発展途上で将来性も見えており、他タワーのリリースが控えている小岩ですから、坪単価400万円前後は魅力的に映ったと思います。ご相談のほとんどが区外からでした。
プラウドタワー小岩ファーストの中古も坪単価400万円を超えてきました。確かに徒歩1分以上の価値は変えられませんが、こちらも同じデッキで少し奥なだけです。シャポー小岩の入口の目の前で「ほぼ」商業施設直結。規模感もファーストよりあるので1分でなくても十分でしょう。こちらは新築で同じ価格帯。
第2期以降の販売にも注目していきます!
24年9月22日追記、第2期 価格
第2期は、9月21日、22日が申込登録受付期間でした。
平均坪単価は430万円。
A2タイプ 75.51㎡
13階 10,738 万円 (坪単価 470 万円)
14階 10,798 万円 (坪単価 473 万円)
B2タイプ 71.78㎡
4階 8,578 万円 (坪単価 395 万円)
5階 8,638 万円 (坪単価 398 万円)
6階 8,698 万円 (坪単価 400 万円)
7階 8,758 万円 (坪単価 403 万円)
8階 8,818 万円 (坪単価 406 万円)
9階 8,878 万円 (坪単価 409 万円)
10階 8,938 万円 (坪単価 412 万円)
11階 8,978 万円 (坪単価 413 万円)
12階 9,018 万円 (坪単価 415 万円)
13階 9,058 万円 (坪単価 417 万円)
14階 9,098 万円 (坪単価 419 万円)
15階 9,138 万円 (坪単価 421 万円)
H1タイプ 73.06 ㎡
28階 9,968 万円 (坪単価 451 万円)
29階 9,988 万円 (坪単価 452 万円)
30階 10,008 万円 (坪単価 453 万円)
31階 10,028 万円 (坪単価 454 万円)
J タイプ 59.16 ㎡
16階 7,188 万円 (坪単価 402 万円)
17階 7,228 万円 (坪単価 404 万円)
18階 7,268 万円 (坪単価 406 万円)
19階 7,308 万円 (坪単価 408 万円)
21階 7,368 万円 (坪単価 412 万円)
22階 7,408 万円 (坪単価 414 万円)
23階 7,448 万円 (坪単価 416 万円)
24階 7,488 万円 (坪単価 418 万円)
25階 7,528 万円 (坪単価 421 万円)
26階 7,568 万円 (坪単価 423 万円)
27階 7,598 万円 (坪単価 424 万円)
28階 7,628 万円 (坪単価 426 万円)
29階 7,658 万円 (坪単価 428 万円)
30階 7,688 万円 (坪単価 429 万円)
31階 7,718 万円 (坪単価 431 万円)
Vタイプ 80.09 ㎡
32階 12,698 万円 (坪単価 524 万円)
33階 13,398 万円 (坪単価 553 万円)
Wタイプ 71.18 ㎡
32階 9,798 万円 (坪単価 455 万円)
33階 10,398 万円 (坪単価 483 万円)
平均坪単価はほぼ変らずですが、前期と比べて、中住戸が値上げしている印象です。江戸川区でもタワー人気はすごいですね・・・。
24年12月8日追記、第2期 価格
第2期の最後の販売価格です。25年1月からは第3期の販売が始まります。
C3タイプ 70.86㎡
4階 8,658万円(坪単価404万円)
5階 8,718万円(坪単価407万円)
6階 8,778万円(坪単価409万円)
10階 9,028万円(坪単価421万円)
14階 9,308万円(坪単価434万円)
F1タイプ 85.36㎡
20階 12,568万円(坪単価487万円)
I1タイプ 68.92㎡
17階 8,328万円(坪単価 399 万円)
18階 8,358万円(坪単価 401 万円)
19階 8,388万円(坪単価 402 万円)
20階 8,418万円(坪単価 404 万円)
21階 8,448万円(坪単価 405 万円)
23階 8,508万円(坪単価 408 万円)
24階 8,538万円(坪単価 409 万円)
26階 8,598万円(坪単価 412 万円)
Tタイプ 69.19㎡
32階 9,978万円(坪単価477万円)
33階 10,888 万円 坪単価520万円)
25年2月25日追記 第3期 価格
第3期は35戸の販売。平均坪単価は約455万円でした。次回は3期2次、3月下旬発売予定です。
Rタイプ 75.14㎡
32階 12,398万円 (坪単価545万円)
33階 12,998万円 (坪単価572万円)

(出典:物件エントリー限定サイト)
E1タイプ 71.83㎡
16階 9,718万円 (坪単価447万円)
17階 9,748万円 (坪単価449万円)
18階 9,778万円 (坪単価450万円)
19階 9,808万円 (坪単価451万円)
20階 9,838万円 (坪単価453万円)
21階 9,868万円 (坪単価454万円)
22階 9,898万円 (坪単価456万円)
23階 9,928万円 (坪単価457万円)
24階 9,958万円 (坪単価458万円)
25階 10,008万円 (坪単価461万円)
26階 10,058万円 (坪単価463万円)
27階 10,108万円 (坪単価465万円)
28階 10,158万円 (坪単価467万円)
29階 10,208万円 (坪単価470万円)
30階 10,258万円 (坪単価472万円)
31階 10,308万円 (坪単価474万円)

(出典:物件エントリー限定サイト)
F1タイプ 85.36㎡
18階 12,598万円 (坪単価488万円)
19階 12,648万円 (坪単価490万円)

(出典:物件エントリー限定サイト)
A2タイプ 75.51㎡
7階 10,438万円 (坪単価457万円)
8階 10,468万円 (坪単価458万円)
9階 10,498万円 (坪単価460万円)

(出典:物件エントリー限定サイト)
Jタイプ 59.16㎡
4階 7,208 万円 (坪単価 403万円)
5階 7,248 万円 (坪単価 405万円)
6階 7,388 万円 (坪単価 413万円)
7階 7,428 万円 (坪単価 415万円)
8階 7,468 万円 (坪単価 417万円)
9階 7,508 万円 (坪単価 420万円)
10階 7,548 万円 (坪単価 422万円)
11階 7,598 万円 (坪単価 425万円)
12階 7,648 万円 (坪単価 427万円)
13階 7,698 万円 (坪単価 430万円)
14階 7,748 万円 (坪単価 433万円)
15階 7,798 万円 (坪単価 436万円)

(出典:物件エントリー限定サイト)
今期も多くのご相談をいただきました。残り戸数も減ってきたので、少し条件を譲っても何とか手に入れたいタワーだと、私は思います。
25年8月7日追記、先着順・第3期4次の販売
以下は、先着順で購入できるようです。
F2 タイプ、75.15㎡
7 階 10,848 万円 (坪単価 477 万円)
8 階 10,898 万円 (坪単価 479 万円)
9 階 10,918 万円 (坪単価 480 万円)
G3タイプ、56.09㎡
6 階 6,928 万円 (坪単価 408 万円)
7 階 6,948 万円 (坪単価 409 万円)
8 階 6,968 万円 (坪単価 411 万円)
9 階 6,988 万円 (坪単価 412 万円)
13 階 7,498 万円 (坪単価 442 万円)
14 階 7,648 万円 (坪単価 451 万円)
以下は、第3期4次の主な販売住戸(予定価格)。
9月の発売で抽選は9月下旬。すこし後ろ倒しになった模様です。平均坪単価はおよそ450万円でした。
H2タイプ、73.05㎡
6 階 9,100 万円台 (坪単価 412 万円)
10 階 9,700 万円台 (坪単価 439 万円)
14 階 9,800 万円台 (坪単価 443 万円)

(出典:プラウドタワー小岩フロント 公式HP)
K2タイプ、 74.28㎡
6 階 10,100 万円台 (坪単価 449 万円)
10 階 10,600 万円台 (坪単価 472 万円)
14 階 11,000 万円台 (坪単価 490 万円)

(出典:プラウドタワー小岩フロント 公式HP)
すでに申し込みが入っているようです。狙っている方は、当てたいですね。
25年10月28日追記、第3期5次の販売住戸
申込登録期間は、25年10月31日(金)、11月1日(土)です。
G2 タイプ、55.76㎡
4 階 7,038 万円(坪単価 417 万円)
5 階 7,138 万円(坪単価 423 万円)
6 階 7,238 万円(坪単価 429 万円)
7 階 7,288 万円(坪単価 432 万円)
8 階 7,338 万円(坪単価 435 万円)
9 階 7,388 万円(坪単価 438 万円)
10 階 7,588 万円(坪単価 450 万円)
11 階 7,688 万円(坪単価 456 万円)
12 階 7,988 万円(坪単価 474 万円)
13 階 8,188 万円(坪単価 485 万円)
14 階 8,288 万円(坪単価 491 万円)
15 階 8,388 万円(坪単価 497 万円)

(出典:物件エントリー限定サイト)
13階くらいから商業施設の上を抜けてくるようです。
F1 タイプ、85.36㎡
16 階 14,458 万円(坪単価 560 万円)
17 階 14,498 万円(坪単価 561 万円)
L2 タイプ、68.94㎡
4 階 8,018 万円(坪単価 384 万円)
5 階 8,078 万円(坪単価 387 万円)
6 階 8,158 万円(坪単価 391 万円)
7 階 8,238 万円(坪単価 395 万円)
8 階 8,318 万円(坪単価 399 万円)
9 階 8,398 万円(坪単価 403 万円)
10 階 8,578 万円(坪単価 411 万円)
11 階 8,658 万円(坪単価 415 万円)
12 階 8,778 万円(坪単価 421 万円)
13 階 8,898 万円(坪単価 427 万円)
14 階 9,068 万円(坪単価 435 万円)
15 階 9,198 万円(坪単価 441 万円)

(出典:物件エントリー限定サイト)
K1 タイプ、80.21㎡
31 階 13,498 万円(坪単価 556 万円)
L1 タイプ、75.19㎡
31 階 11,498 万円(坪単価 506 万円)
いよいよ販売も終盤。今期が完売すれば、残り30戸前後。次回が最終期になりそうですね。寂しい、、、、。
25年11月19日追記、まもなく竣工!
外構の整備が最終段階に入っていました。あらためて、商住一体開発の素晴らしいランドプランに感動しました!まもなく内覧会が始まりますね。




26年2月2日追記、第4期の販売住戸
すでに先週の土曜日に抽選は終了しています。最大倍率は3倍。すべて完売したようです。
B1 タイプ 71.22 ㎡
16 階 11,688 万円 (坪単価 543 万円)
17 階 11,788 万円 (坪単価 547 万円)
18 階 11,888 万円 (坪単価 552 万円)
19 階 11,988 万円 (坪単価 556 万円)
20 階 12,188 万円 (坪単価 566 万円)
21 階 12,388 万円 (坪単価 575 万円)
D3 タイプ 70.41 ㎡
4 階 10,488 万円(坪単価 492 万円)
5 階 10,518 万円(坪単価 494 万円)
6 階 10,548 万円(坪単価 495 万円)
7 階 10,578 万円(坪単価 497 万円)
8 階 10,608 万円(坪単価 498 万円)
9 階 10,638 万円(坪単価 499 万円)
10 階 10,698 万円(坪単価 502 万円)
11 階 10,898 万円(坪単価 512 万円)
12 階 11,178 万円(坪単価 525 万円)
A2 タイプ 75.51 ㎡
4 階 10,948 万円(坪単価 479 万円)
5 階 10,998 万円(坪単価 481 万円)
6 階 11,348 万円(坪単価 497 万円)
平均坪単価は、およそ520万円。
以上をもって残り12戸。次回が最終期でしょうか。
26年3月23日追記、第4期2次の販売住戸
最終期だと思いますが、かなり上げてきましたね。
専有面積 70.41㎡・71.22㎡
予定販売価格(100万円単位)
最低価格 12,800 万円台~最高価格 13,800 万円台
正式価格一例
D3 タイプ 70.41 ㎡
13階、12,888万円(坪単価604万円)
3月下旬の登録。
パークシティ小岩ザタワーの4期1次が、坪500万円前半で販売されるようなので、待ちたいですよね。おそらく抽選必至ですが…。



















