
(出典:ザ・パークハウス門前仲町 公式HP)
待ちに待っていた「ザ・パークハウス門前仲町」の分譲が始まります。7月下旬にマンションギャラリーを訪問しました!
この記事の目次
ザ・パークハウス門前仲町の特徴・良さ
物件概要
ザ・パークハウス門前仲町
東京都江東区佐賀1
東京メトロ東西線「門前仲町」駅 徒歩8分
都営大江戸線「門前仲町」駅 徒歩8分
東京メトロ半蔵門線「水天宮前」駅 徒歩9分
用途地域:準工業地域
敷地面積:5,648.43㎡(実測面積・転借地権対象面積)
一般定期借地権(転借地権)一斉引渡日から70年(建物解体、工事期間を含まない)
総戸数:240戸
駐車場:62台(機械式60台、平置き1台、身障者用1台)
専有面積:35.51㎡~100.50㎡
完成日または予定日:2027年10月中旬
引渡可能年月:2028年1月下旬
売主:三菱地所レジデンス・三菱倉庫
施工:川口土木建築工業

(出典:ザ・パークハウス門前仲町 公式HP)
ザ・パークハウス門前仲町に住むメリット
「ザ・パークハウス門前仲町」は、東京駅2.3km圏。話題に事欠かない東京駅周辺、日本橋エリアに隣接しながら穏やかに生活できるベストポジションと、住まいの体験価値や情緒性、生活満足度を高めてくれる大規模ランドプランが大きなメリット!
過去1年で江東区湾岸、深川エリアの人気が大きく上がってきた中、深川エリアの筆頭格、門前仲町ではファミリータイプの売出しが少なく、特に大規模分譲は20年以上ぶりの希少性。今後は、近隣で控えた複数の大規模マンション開発、将来的な駅周辺の再開発(未定)が、エリアの人気を更に高めていく期待感もあります。
70年定期借地権のマンションの特徴
本物件は、70年定期借地権のマンションです。三菱地所レジデンスが三菱倉庫から土地を借り、住人に貸出す転貸借方式。三菱地所レジデンスが入って管理してくれるので安心感があります。借りた土地にマンションを建て専有部分は区分所有に。70年間きっちり暮らしてから三菱地所レジデンスが建物を解体、更地にして三菱倉庫に返却するため、住人に資産は残りません。
周辺環境、立地、アクセス
敷地は「門仲」の賑いからからは少し外れた中央区寄り。オフィスビルが並ぶ区画に建ちます。ただし人混みの喧騒は少なく、比較的穏やかな住環境です。
休日は、門前仲町や清澄白河界隈で個性ある飲食店やカフェ巡り、散策が楽しめる場所。




隅田川を渡れば人形町周辺の飲食店、「高島屋日本橋店」や「コレド日本橋」「三越日本橋店」「コレド室町」など大型商業施設も身近で、東京の中心の話題性あるスポットが生活を彩ってくれるでしょう。


マンション周辺は、「隅田川テラス」(徒歩3分)や「清澄公園」(徒歩6分)「清澄庭園」(徒歩8分)など自然が豊富で癒される環境でもあります。


マンションから門前仲町駅(徒歩8分)周辺までは、新大橋通りを渡ってフラットな道のり。水天宮前駅(徒歩9分)周辺までの動線も比較的歩きやすく思ったより近くに感じられます。ただ、隅田川を渡る動線のため、寒い季節や風雨が強い日などは歩きづらいかもしれません。
大手町までの通勤は半蔵門線(直通4分)と東西線を選べ、東京駅周辺に勤めている人は自転車や徒歩でも移動できる位置。3路線を利用でき、東京(大手町駅の地下から直結)、上野、新宿、渋谷などの主要ビッグターミナルから、表参道や六本木といった話題のスポットへも直通短時間での移動が可能です。
なんといっても旅行や出張など遠出が楽々。マンションから東京駅間もタクシーであっという間。羽田・成田空港へは、「東京シティエアターミナル」(徒歩9分)からリムジンバスも利用できるので、眠い朝も気持ちが軽く、疲れた帰路も本当に快適です。また、首都高速出入り口がすぐなので、車保有者にとっても非常に便利。
マンションから徒歩10分以内の主な商業施設です。
まいばすけっと 江東佐賀2丁目店(徒歩2分)
セブンイレブン江東佐賀1丁目店(徒歩2分)
セブンイレブン江東佐賀2丁目店(徒歩4分)
コーナン 江東深川店(徒歩7分)
食品館あおば 深川店(徒歩7分)
赤札堂 深川店(徒歩9分)
くすりの福太郎 門前仲町店(徒歩10分)
ココカラファイン 門前仲町店(徒歩10分)
「東京シティエアターミナル」には「マクドナルド」や「カフェ・ド・クリエ」、他にも複数の飲食店などが入居しているので、散歩がてら外食するときも使えます。
通学区の小学校、中学校
明治小学校(徒歩9分)
深川第二中学校(徒歩13分)
ハザードマップ上、近隣の色は薄いエリアですが、少なからず万が一の高潮や河川氾濫による洪水時に、浸水リスクがあるエリアとなっています。他にも、マンションを検討する際は、周辺環境など事前に最低限の下調べをしておきましょう(参考記事)。
ランドスケープデザイン、共用部
敷地は5,600㎡超。3方を接道し、敷地南側が「佐賀町公園」に隣接する独立した敷地。


(出典:ザ・パークハウス門前仲町 公式HP)
エントランスは門前仲町方面の敷地東側に、サブエントランスも敷地北側に設けられます。解放的なガラス張りの2層吹き抜け空間のエントランスホール。エントランス前には天候に関係なく荷物や人の乗り降りができる車寄せ。大規模マンションの車寄せや存在感あるエントランスは住まいの格を高め、住人の満足度も高めてくれる要素になります。


共用施設には、棟内の住人との交流が図れるような「コミュニティリビング」と「マルチスタジオ」に、ゆっくりしたり落ち着いて作業できる「ワークスペース」が設置。近隣のマンションではほとんど見かけない「ゲストルーム」も用意されます。棟内で様々な生活スタイルを楽しめる、大規模マンションならではのゆとりを感じます。


また本物件は、東京都の「東京こどもすくすく住宅」中でもトップクラスの「アドバンストモデル」の認可を受けます。子育てに優しい施設や設備だけでなくコミュニティ支援も重視されたモデルで、棟内イベントなどが計画される予定です。大規模マンションには、自然と棟内コミュニティが活性化され、助け合える関係が構築しやすいですから、良い意味で都心部の「団地」のような温かみがある住まいになってくれることを期待しましょう。
敷地南側の「佐賀町公園」は、乳幼児が遊べるような遊具がたくさんある明るい公園なので、棟内で同じ歳くらいの子を持つ住人と会話が生まれる場所になるはず。子供が小さい頃はマンションのキッズスペースのような感覚で使えます。

住空間、専有部の特徴、設備、仕様
住棟はE棟(東向き)、W棟(西向き)、S棟(南西向き)の3棟構成。
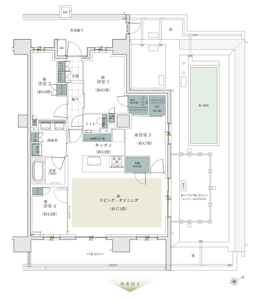
南西向きは70㎡超の広めの部屋が多く、ファミリーが快適に暮らせる当マンションの大きなポイントになってきます。60㎡台でもなく、小規模マンションにありがちなトリッキーでもない、居住性が高い70㎡超の「田の字型」の間取り。
例えば、モデルルームと近いタイプのS72-Bタイプ、72.78㎡。

(出典:ザ・パークハウス門前仲町 公式HP)
家族が増えても柔軟に空間配分ができ、収納も十分に対応できます。
東向きは60㎡台の3LDK中心。西向きは1LDKが中心です(それぞれの棟で大型3LDK、4LDKの設定もあります)。
環境面ではどうでしょうか。
住戸設定は、それぞれの棟で1階から。専用庭が設けられているので1階住戸を選ぶメリットがあります。
南向きは、前面が佐賀町公園。公園を挟んで会社の建物がありますが、建物の北側の方は段階的に低くなっているので、低層階からでも圧迫感は少ないでしょう。何よりも日当たりの良さが魅力ですね。

東向きは、バルコニーから15m前後、道路を挟んで5階建てのビルが建っているので、5階くらいまでは被ってくる住戸が多くなります。6,7階くらいから上階が抜けてきて、周辺が開けているため遠くまで抜け感ある眺望を楽しめそう。眺望を楽しみたい人は、南向きより選ぶ価値があると思います。

西向きは、前面5階建てのマンションまで離隔がしっかり取れてくるので解放感がある住戸が多いのですが、自己日影がきつめの住戸位置や、高さで言えば2~3階だと機械式駐車場や共用棟が被ってくる住戸もあります。6階くらいからは抜けてきて、東向き同様に眺望の良さを実感できるでしょう。

最新の設備も見どころ。基本は全て顔認証システムを採用し、マンションそれぞれの共用部の出入りや、住戸前、共用施設の予約なども全て顔認証で行います。知人、親族などが来訪される際は、日時限定で顔認証パスを組成できるようです。
住戸内は、ディスポーザー、食器洗い乾燥機など、活動的なファミリーの時短生活を助けてくれる最新の設備が一通りそろっています。水回りはウルトラファインバブル仕様(一部除く)で、肌に優しい水回りでの生活を実現。最近増えてきましたね。色見、風合いを寄せた食器棚が標準、キッチン、洗面室、トイレの手洗いカウンター天板全てにフィオレストーンを使用するなど、機能面だけでなく空間を美しく見せる仕様も充実。二重床・二重天井、生活の快適度を高める玄関のニッチ(飾り棚)、共用廊下側の部屋には可動式ルーバー面格子など、全般的に高スペックです。
天井高は1階が2650mm、2階より上階が2450mm、バルコニーの奥行きは、1800mmでした。
80㎡以上のタイプは、グースネック上の水栓、廊下床がタイル貼りなど、更に高い仕様になっています。
なお、本物件は、ZEHと低炭素住宅をダブルで取得。高いレベルでの快適空間、環境に優しい省エネ性能を発揮します。
間取り 予定価格
販売予定価格の一例です。
S-81Agタイプ、81.30㎡
1階、15,000万円前半
S-81Aタイプ、81.30㎡
3階、15,000万円後半
S-94Arタイプ、94.52㎡
5階、19,000万円中盤
7階、19,000万円後半

(出典:ザ・パークハウス門前仲町 公式HP)
S-95Arタイプ、95.12 ㎡
8階、19,000万円後半
S-95Aタイプ、95.12 ㎡
10階、19,000万円後半
S-74A1gタイプ、74.00㎡
1階、13,000万円前半

(出典:ザ・パークハウス門前仲町 公式HP)
S-74A1タイプ、74.00㎡
4階、13,000万円中盤
6階、14,000万円前半
8階、14,000万円中盤
S-74A2rタイプ、74.00㎡
11階、14,000万円後半
S-59Agタイプ、59.62㎡
1階、10,000万円前半
S-59Aタイプ、59.62㎡
4階、10,000万円後半
6階、11,000万円前半
8階、11,000万円中盤
10階、11,000万円後半

(出典:ザ・パークハウス門前仲町 公式HP)
S-70Agタイプ、70.40㎡
1階、11,000万円後半
S-70Aタイプ、70.40㎡
4階、12,000万円前半
6階、12,000万円中盤
8階、12,000万円後半
10階、13,000万円前半
12階、13,000万円中盤
S-72Agタイプ、72.78㎡
1階、12,000万円後半
S-72Aタイプ、72.78㎡
4階、13,000万円前半
6階、13,000万円中盤
8階、13,000万円後半
10階、14,000万円前半
12階、14,000万円中盤
S-90A2タイプ、90.61㎡
1階、16,000万円中盤
S-90A1タイプ、90.61㎡
5階、17,000万円前半
7階、17,000万円後半
11階、18,000万円中盤

(出典:ザ・パークハウス門前仲町 公式HP)
(前半:000〜399万円)
(中盤:400〜699万円)
(後半:700〜999万円)
価格帯は、低層階が坪単価500万円中盤~高層階が600万円後半。平均では各レンジの中央値換算で約630万円。
(最新の価格はギャラリーでご確認ください)
月々のランニングコストは以下です。
S-70Aタイプ
管理費、19,800円
修繕積立金、14,800円
インターネット利用料、2,981円
共視聴設備利用料、275円
コミュニティ形成費、200円
月額賃料、6,829円
解体準備積立金、7,744円
月額合計、52,629円
ザ・パークハウス門前仲町 デメリット・気になる点
当マンションのデメリットは、近隣オフィス街なので少し寂しい住環境、門前仲町の賑わいがある場所から少し離れた立地です。新大橋通りを渡ると、飲食店や商業施設が少なくなってきます。
あとは定期借地権が気になりますよね。70年後、子供世代に資産を残せません。10年程度のリセールは、当マンションの人気先行で所有権マンションと比較しても、ある程度維持されていくと思いますが、残55年、50年と少なくなると、条件が近い所有権と比べて資産価値は低くなっていくでしょう。
それと、ランニングコストが管理費、修繕積立金に加え、地代と解体準備金の負担が増えます。土地に固定資産税・都市計画税はかかりませんが、建物にかかるインパクトの方が大きいため、ランニングコストの相殺とまではいきません。
ただし、管理費は大規模の恩恵で比較的安く、修繕積立金も当初から高めに設定されていることは、暮らし始めてから後々を考えると良心的だと思いました。新築時は見栄え良く安めに設定され、段階的に大きく上げる修繕積立計画が後々もたらす問題点が指摘されています。70年で更地に戻すわけですから必要以上の負担増要因も少ないはずです。
最後に・まとめ
いいですね♪
この場所での大規模ランドプラン「ザ・パークハウス」、モデルルームもテンションが上がりました!
すでに、数件のご相談をいただいてますが、特に定期借地権に関する不安の声は聞きません。
この数年で、定期借地権付きのマンションが増えてきたと感じます。特に都心部では土地が少なくなり地価も上昇。定期借地権だと、私たちは都心部のこれだけのまとまった土地に暮らせる、土地の貸主は有効な土地を手放さずに引き続き土地の利用を考えられる、人口減少社会において土地利用を柔軟に考え無駄な住まいを増やさない合理的な住宅事業に感じます。
定期借地権マンションのメリットは、駅近などの希少な立地と、所有権と比較した時の割安感だと思っています。
立地は、定期借地だからこそ出る、東京駅周辺の恩恵を受けられそうなポジション。更に、利便性が高く、お金では買えないファミリーの思い出をたくさん残してくれる大規模ランドプランを造れた広大な土地。その希少性は間違いないでしょう。
本物件より近い中央区はオフィスや大通りが交わる商業地が多く、穏やかな住環境が少なくなってきます。これだけのゆったりとした敷地、緑豊かなランドプランを確保して、利便性が高い共用施設などを盛り込む企画もなかなか難しくなってきます。
価格については、所有権のマンションより際立った割安感は感じなかったものの、現在分譲中の浅草橋や秋葉原、森下の新築(所有権)と比べると5~10%前後安い印象。近隣の中古マンションでは、築10年を過ぎた所有権の「シティハウス門前仲町」が今年に入り、同じく70年定期借地権、駅徒歩3分の「ヴェレーナグラン門前仲町」が昨年末に、坪単価500万円中盤前後で成約されています。
前述した通り、そもそも大型の土地が少なく企画ができないですからプライスレスな側面もあるでしょう。タワーマンションも一般的なマンションと比べて大きな付加価値が付くようになりました。そもそも新築の供給が減っていますから、希少な物件であれば、所有権との差が少なくなる傾向にあるのかもしれません。いずれにしても一番安い価格レンジで決まれば嬉しいですね。
来年以降、近隣ではヤマタネ、野村不動産、関電不動産開発などの大規模分譲が予定されていることに加え、三菱地所の駅周辺再開発が視野に入ってきています(未定)。東京・日本橋エリアの再開発に加え、この辺の輪郭が見えてくると、広域からみても「世界の東京駅の隣、門前仲町」として、西側の中目黒みたいに、なんだかすごいエリアとして更に一皮むけそうな気がします。大げさかもしれませんが、大きな上昇基調に乗る確率は確かでしょう。
ギャラリーの営業の方と話していても、長期的な販売を考えているようでした。
第1期販売は10月、条件の良い南西向き棟45戸の販売を予定。
このポジション、最大手ブランド、大規模ランドプランで、日当たりの良い南西向き、70㎡超の広さという好条件からの売出しですから、近隣、所有権のマンションと条件を比べてこの企画の分譲が積極的に気に入れば、検討が進みそうです。
販売動向、正式な価格など、引き続き注目していきます!
25年10月10日追記、第1期1次販売価格
登録受付期間は、25年10月10日(金)~25年10月12日(日)17:00まで
抽選日は25年10月13日(月・祝)11:00です。
販売価格
102,900,000円(売買代金:76,956,039円、前払賃料:25,943,961円)
~
199,900,000円(売買代金:158,769,117円、前払賃料:41,130,883円)
専有面積:59.62㎡~95.12㎡
平均坪単価は約630万円前後。
販売一例です。
S-74A1gタイプ、74㎡
1階、13,300万円(坪単価594万円)
S-74A1タイプ、74㎡
6階、14,010万円(坪単価626万円)
S-59Aタイプ、59.62㎡
10,290万円(坪単価571万円)~11,480万円(坪単価637万円)
S-90A1タイプ、90.61㎡
16,600万円(坪単価606万円)〜19,500万円(坪単価711万円)
S-94Arタイプ、94.52㎡
5階、19,690万円(坪単価689万円)
7階、19,900万円(坪単価696万円)
「ウィルローズ森下」が、第1期の平均坪単価670万円から直近で700万円以上まで値上げしたなど、周辺、新築所有権との乖離が出てきた印象です。
25年11月7日追記、第1期3次販売価格
登録受付期間は、2025年11月7日(金)11:00~2025年11月9日(日)15:00
抽選日時は、2025/11/9(日)16:00
販売住戸は31戸です。
S-73A1g タイプ 73.40 ㎡
1階 13,200 万円(坪単価 594 万円)
S-73A1g タイプ 73.40 ㎡
1階 13,150 万円(坪単価 592 万円)
S-73A3g タイプ 73.40 ㎡
1階 13,100 万円(坪単価 590 万円)
S-74A1g タイプ 74.00 ㎡
1階 13,350 万円(坪単価 596 万円)
S-74A1 タイプ 74.00 ㎡
8階 14,400 万円(坪単価 643 万円)
9階 11,650 万円(坪単価 646 万円)
10階 11,820 万円(坪単価 655 万円)
11階 11,870 万円(坪単価 658 万円)

(出典:ザ・パークハウス門前仲町 公式HP)
S-65Ag タイプ 65.59 ㎡
1階 11,170 万円(坪単価 563 万円)

(出典:ザ・パークハウス門前仲町 公式HP)
S-70Bg タイプ 70.82 ㎡
1階 11,990 万円(坪単価 560 万円)
S-70B タイプ 70.82 ㎡
2階 11,990 万円(坪単価 560 万円)
3階 12,190 万円(坪単価 569 万円)
4階 12,350 万円(坪単価 576 万円)
5階 12,560 万円(坪単価 586 万円)
6階 12,690 万円(坪単価 592 万円)
7階 12,820 万円(坪単価 598 万円)
8階 12,960 万円(坪単価 605 万円)
9階 13,100 万円(坪単価 611 万円)
10階 13,250 万円(坪単価 618 万円)

(出典:ザ・パークハウス門前仲町 公式HP)
S-72Cg タイプ 72.78 ㎡
1階 12,950 万円(坪単価 588 万円)
S-72C タイプ 72.78 ㎡
2階 12,950 万円(坪単価 588 万円)
3階 13,080 万円(坪単価 594 万円)
4階 13,300 万円(坪単価 604 万円)
5階 13,480 万円(坪単価 612 万円)
6階 13,670 万円(坪単価 621 万円)
7階 13,810 万円(坪単価 627 万円)
8階 13,990 万円(坪単価 635 万円)
9階 14,180 万円(坪単価 644 万円)
10階 14,360 万円(坪単価 652 万円)

(出典:ザ・パークハウス門前仲町 公式HP)
S-90A1 タイプ 90.61 ㎡
4階 17,160 万円(坪単価 626 万円)
8階 18,040 万円(坪単価 658 万円)
平均坪単価は約610万円でした。
25年11月27日追記、先着順 主な販売住戸
S-59Aタイプ、59.62㎡
4階、10,800万円(坪単価 599 万円)
11階、11,870万円(坪単価 658 万円)
S-65Ag タイプ 65.59 ㎡
1階 11,170 万円(坪単価 563 万円)
S-70B タイプ 70.82 ㎡
2階 11,990 万円(坪単価 560 万円)
9階 13,100 万円(坪単価 611 万円)
S-72C タイプ 72.78 ㎡
2階 12,950 万円(坪単価 588 万円)
10階 14,360 万円(坪単価 652 万円)
S-74A1 タイプ 74.00 ㎡
6階 14,010万円(坪単価 626万円)
S-90A1 タイプ 90.61 ㎡
4階 17,160 万円(坪単価 626 万円)
26年1月27日追記、第2期1次販売価格
今期から東向き住戸の販売が開始されます。第2期1次は12戸。
主な販売住戸です。
E-69A1タイプ 69.34㎡
3階 11,500 万円(坪単価 548 万円)
5階 11,880万円(坪単価 566 万円)

(出典:ザ・パークハウス門前仲町 公式HP)
E-68A3gタイプ 68.00㎡
1階 10,660 万円(坪単価 518 万円)
E-68A1gタイプ 68.00㎡
1階 10,780 万円(坪単価 524 万円)

(出典:ザ・パークハウス門前仲町 公式HP)
E-68A1タイプ 68.00㎡
5階 11,730 万円(坪単価 570 万円)523号室
5階 11,770 万円(坪単価 572 万円)524号室
E-80Agタイプ 80.50㎡
1階 13,700 万円(坪単価 563 万円)

(出典:ザ・パークハウス門前仲町 公式HP)
E-80Aタイプ 80.50㎡
2階 13,970 万円(坪単価 574 万円)
3階 14,190 万円(坪単価 583 万円)

(出典:ザ・パークハウス門前仲町 公式HP)
E-90Arタイプ 90.25㎡
6階 16,990万円(坪単価 622 万円)
7階 18,390万円(坪単価 674 万円)

(出典:ザ・パークハウス門前仲町 公式HP)
環境のハンデなり、単価は南向きより低いです(実質値上げはしていない)。ただ、5階は、前建てが少し被っていて、上の方を空が見えてくるレベル。抜けてくる6,7階くらいから単価は上がってきそうです。
登録受付日は、1/30(金)~1/31(土)16時締切。抽選は1/31(土)17時。
合わせて先着順も引き続き9戸ほど販売中です(公式HPより、26年1月27日現在)。
(販売住戸一例)
S-59Aタイプ、59.62㎡
4階、10,800万円(坪単価 599 万円)
10階、11,820万円(坪単価 654 万円)
S-70B タイプ 70.82 ㎡
2階 11,990 万円(坪単価 560 万円)
7階 12,820 万円(坪単価 598 万円)
S-72C タイプ 72.78 ㎡
2階 12,950 万円(坪単価 588 万円)
9階 14,180 万円(坪単価 643 万円)
S-74A1 タイプ 74.00 ㎡
6階 14,010 万円(坪単価 624 万円)



















