
(出典:イニシア千住大橋ステーションフロント)
発展著しい千住エリア。楽しみにしていたイニシアブランドの新築が分譲されます!
イニシア千住大橋ステーションフロント
アクティブウイング(Active wing)
東京都足立区千住河原町
京成本線「千住大橋」駅徒歩2分
千代田線「北千住」駅1出口徒歩13分
日比谷線「北千住」駅1出口徒歩13分
伊勢崎線「北千住」駅仲町出口徒歩15分
つくばEX「北千住」駅仲町出口徒歩15分
常磐線「北千住」駅仲町出口徒歩15分
総戸数:15階建て55戸
(うち事業協力者住戸2戸含む)、他に管理事務室、スカイラウンジ敷地面積
敷地面積:465.98㎡(分譲対象面積は開発道路部分128.53m2を含む594.51㎡)
建築面積:287.92㎡
建築延床面積:3,269.93㎡
駐車場:5台
用途地域:商業地域
竣工時期:2027年3月予定
入居時期:2027年4月予定
イニシア千住大橋ステーションフロント
ブライトウイング(Bright wing)
東京都足立区千住河原町
京成本線「千住大橋」駅徒歩3分
千代田線「北千住」駅1出口徒歩13分
日比谷線「北千住」駅1出口徒歩13分
伊勢崎線「北千住」駅仲町出口徒歩15分
つくばEX「北千住」駅仲町出口徒歩15分
常磐線「北千住」駅仲町出口徒歩15分
総戸数:15階建て68戸
他に事業協力者事務所、管理事務室、アトリエラウンジ
敷地面積:812.78㎡
建築面積:480.92㎡
建築延床面積:5,600.85㎡
駐車場:14台、他に事業協力者区画用1台
用途地域:商業地域
竣工時期:2027年3月予定
入居時期:2027年4月予
売主:コスモスイニシア
施工:岩田地崎建設 東京支店

(出典:イニシア千住大橋ステーションフロント)
今回は、予定価格帯を中心に共有します。11/22(土)~24(月)で行われたプロジェクト事前案内会で発表されました。後日、マンションギャラリーを訪問後(予定)、あらためて本物件の特徴や良さを紹介したいと思います。
本プロジェクトは、アクティブウィングとブライトウィングの2物件で合計123戸。「アクティブ」は主にコンパクトな住戸が中心。「ブライト」はファミリー向けの3LDKが中心です。
(以後、アクティブもしくはA、ブライトもしくはBと表記)
マンションは、京成本線千住大橋駅徒歩2~3分。特に大手町など千代田線沿線に勤務される方は、ドアツードア短時間での移動を実現可能にする好立地。駅近の大きなメリットを実感できるでしょう。また、日暮里駅へ直通6分、京成上野駅へ直通11分です。谷根千エリア、上野駅周辺に集まる商業施設、文化的施設などエンタメ性あふれる上野界隈のスポットにも気軽に遊びに行けるので、休日のライフスタイルを豊かにしてくれるポジションです。
日光街道の西側は、再開発エリア「ポンテグランデTOKYO」を中心に、大型商業施設「ポンテポルタ千住」(A:徒歩4分・B:徒歩4分)、公園、大規模マンションなどが立ち並び、暮らしやすい住環境を形成している人気エリア。

(A:徒歩2分・B:徒歩3分)

(A:徒歩4分・B:徒歩3分)
本物件は、駅、日光街道の東側ですが、千住大橋駅周辺の利便施設だけでなく、北千住周辺も生活圏にできるのが強み。駅周辺の商業施設や無数の飲食店を身近に利用でき、複数路線が乗り入れる北千住駅も利用できるので、ライフスタイルや、その場面場面で柔軟な移動を可能にしてくれます。

本物件に隣接した「日光街道」一帯は、もともと江戸時代から賑やかな宿場町のメイン通りとして栄えた場所でした。令和の時代になって、千住エリアは北千住を中心にますます注目され人気の街に。千住大橋(ポンテグランデTOKYO残りのピース)、千住関屋町(徒歩13分前後)、北千住駅東口など再開発を控えている場所も多く、将来性がますます期待されるエリアです。
日々の生活面では、スーパーが近くに3店舗あり便利です。
ライフポンテポルタ千住店
(A:徒歩4分・B:徒歩4分)
アコレ千住大橋駅前店
(A:徒歩2分・B:徒歩3分)
まいばすけっと千住大橋駅北店
(A:徒歩3分・B:徒歩4分)
通学区
千寿小学校(A:徒歩6分・B:徒歩7分)
第一中学校(A:徒歩6分・B:徒歩6分)
近隣は、荒川が万一氾濫した際の浸水リスクが比較的高いエリア。日々の防災意識を竹めてく暮らしたい場所です。他、マンションを検討する際は、最低限周辺環境などを下調べしておきましょう(参考記事)。
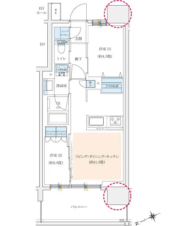
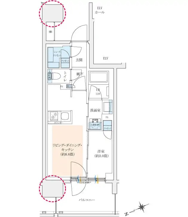
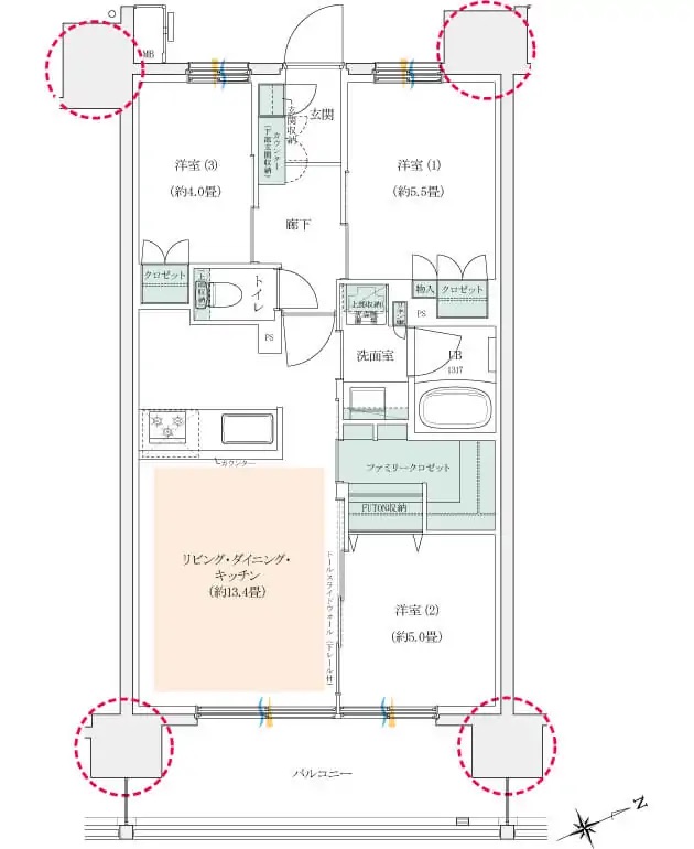
ランドプランについて。

(出典:イニシア千住大橋ステーションフロント)
「アクティブ」が、日光街道を向いた北西向き。「ブライト」が足立市場を向いた南東向き。両方とも抜け感があり開放感がある住環境です。特に「ブライト」は、日当たりの良さも実感できる好条件。
反面、敷地は交通量が多い日光街道沿い、京成線の高架にも近く喧騒に晒されています。駅近の利便性、明るい住環境と天秤にかけて好みが分かれる場所だと思います。昼夜、時間帯なども変えて現地を訪問してみましょう。
今回のプロジェクト事前案内会で発表された主な間取りと予定価格です。
◆アクティブウイング
A-Bタイプ 45.20㎡
8階 5,900万円台(坪単価 432万円)

(出典:イニシア千住大橋ステーションフロント)
A-Cタイプ 32.48㎡
8階 4,700万円台(坪単価 478万円)

(出典:イニシア千住大橋ステーションフロント)
A-Dタイプ 54.99㎡
8階 7,100万円台(坪単価427万円)
◆ブライトウイング
B-Bタイプ 63.44㎡
9階 9,400万円台(坪単価 490万円)

(出典:イニシア千住大橋ステーションフロント)
B-Eタイプ 70.04㎡
9階 10,400万円台(坪単価491万円)

(出典:イニシア千住大橋ステーションフロント)
上記は一部ですが、すべての提示された間取りと予定価格の平均坪単価は、「アクティブ」がおよそ450万円、「ブライト」がおよそ490万円でした(十万円単位を50万円として試算)。
「アクティブ」は、このポジションと駅近立地で、主に単身者から家族2人向けに刺さりそうな価格帯だと思いましたが、「ブライト」は若干強気の印象。「シティタワー千住大橋」の平均坪単価が550万円前後ですから、500万円前後になってくると、住戸によってシティタワーとの比較が気になってくるかもしれません。とはいえ、明るい南東向き、抜け感など住環境の良さ、居住性が高い間取りなど条件の良さがありますから、予算1億円前後、23区の駅近好立地で3LDKを探しているファミリー層にとっては、選択肢の一つになりそうです(シティタワー千住大橋の価格帯は11月初旬時点)。
イニシアの住空間設計の良さ、日光街道沿いのデメリットを補完する設備仕様なども注目ですね。
マンションギャラリーを訪問次第、随時更新していきます!
購入のご相談はこちらまで。



















