
(出典:物件エントリー者限定WEBサイト)
先日、小岩を越えて市川まで遠征。注目していたタワーマンションのギャラリーを訪問してきました!
リーフシティ市川 ザ・タワー
千葉県市川市市川南2
JR総武本線「市川」駅徒歩7分
敷地面積:12,200.02㎡
建築面積:5,340.88㎡
延床面積:71,594.63㎡
総戸数:29階建て674戸(他に保育施設1区画)
専有面積:約42.70㎡ ~ 129.90㎡
駐車場台数:338台(自走式337台+平面1台)
用途地域:工業地域
売主・販売代理:三井不動産レジデンシャル、野村不動産、三菱地所レジデンス
施工:長谷工コーポレーション
竣工時期:2026年10月下旬
入居予定:2027年1月下旬

(出典:リーフシティ市川 ザ・タワー 公式HP)
『この開発の大規模、内廊下、免震タワーにこの価格で住めるんだ!?』が、ファーストインプレッションでした。
価格から先に言うのは厭らしい気もするのですが、平均坪単価は、およそ350万円です。北向き、約73㎡のワイドスパン住戸が7千万円前半。
市川駅周辺の築浅中古マンションの成約坪単価は、板状タイプで300万円中盤~後半の相場観。現在の売出しの中では400万円台も見られます。本物件は、コストが一段とかかる免震タワーでこれから建つ未使用の新築ですから、駅距離を加味しても定期借地権として価格がしっかり反映されていると感じました。
JR総武線は、東京と千葉を結ぶ大動脈の人気路線。沿線では各駅周辺で開発が進んでいるので、沿線人気は今後も不動だと思っています。東京都心部に通勤する人でも、東京駅まで快速電車の利用で直通20分の軽快なアクセス。激混みの総武線でも、この短時間なら耐えられそうです。隣の本八幡からは都営新宿線も便利。始発なので総武線快速より時間はかかりますが、座って都内に通うことができます。
生活面での一番のメリットは、当タワーが単体での開発ではなく商住一帯の大規模再開発であること。

(出典:リーフシティ市川 ザ・タワー 公式HP)

(出典:リーフシティ市川 ザ・タワー 公式HP)
駅前の喧騒や高い建物が建ち並ぶ環境ではなく、リバービューを臨める穏やかな住環境に、これだけのタワーや賃貸住宅やシニア住宅、複合商業施設が集まる大規模開発の強み(たくさんの魅力、メリット)を感じました。
隣接した敷地では「イオンスタイル」が来年3月にオープンを控え、2階には複数のテナントが入居予定。すでに街区内では「セブンイレブン」がオープンしており、駅前まで出なくても、日常生活が街区内で済ませられる利便性を誇ります。


南側も北側も抜け感がある眺望を楽しみながらの生活。近くの河川敷で打ち上げられる市川の花火大会は、住戸内から見ても良し(南向き)、27階の共用スカイラウンジから見ても良しです。

(出典:リーフシティ市川 ザ・タワー 公式HP)
市川初の免震構造で揺れを軽減してくれる安心感が高いタワー構造。空調が効いた内廊下に各階にゴミ置き場完備は、真冬や真夏、天候が悪い日、これ以上ない快適さを実感するでしょう。
セキュリティは玄関前に加え、共用部では風除室(もしくはサブエントランス)とエレベーターホール前の2箇所しっかり設けられています。24時間有人管理も大規模マンションならではの防犯要素。子供が大きくなって駅前まで塾に通うことになっても、夜間の動線は駅からほぼ一直線。比較的明るい道路なので安心感があると思いました。「イオンスタイル」もできますし、街区が完成すれば、周辺の人通りは更に増えるでしょう。

2019年の台風で、地下の電気室が被災したタワーマンションのニュースが記憶に新しいと思います。本物件の敷地も、ハザードマップ上は1階相当の浸水リスクがあるエリアですが、電気室は2階に設置して対策を講じ、各階には防災備蓄倉庫も用意されます。
マンションの管理は、住人の負担が少ない第3者方式がとられます。毎日忙しいファミリーにとって嬉しいポイントですね。
本物件で気になった点は、主に環境面と定期借地権です。
環境面では「工業地域」であることが気になりました。敷地南側には「北越コーポレーション」の工場があります。個人差もありますが、時間帯や風向きなど天候によって、音や臭いなどが気になるかもしれません(長い間暮らさないと中々気づかないかも)。また、大きく抜けた眺望や日当たりなど最高の条件の南向きですが、工場(低層の建物)が永遠に操業し続け、将来にわたって開けた環境が保証されているわけではありません。
定期借地権の意味合いはどうでしょうか。先述の通り、価格面の妥当性はあると思っています。希少性を考えてみると、駅前再開発ではないものの、この開けた穏やかな住環境の中に、利便性を伴う大規模タワーと商住一体開発ができた広大な土地に希少価値があると思いました。
定期借地権マンションのリセールを気にされる人も多いと思います。譲渡や転貸は可能です。
残年数が60年、50年と少なくなれば、つまり、若年層の検討者が生涯暮らしづらくなる残年数に入ってくると、所有権と比べて相対的に価値は落ちていくでしょう。ただし、大事なのは取得価格で、個人的にはこのスペックのタワーとしては安いと思っています。船橋にタワーが建ち、小岩にもそのうち新たなタワーがおそらく今より高い価格でリリースされ、沿線人気は盛り上がり続けますから、しばらくはエリアの相場に乗じて堅調に推移すると考えます。万が一売却する際も、この希少な企画、鉄板大規模タワーの出口は当面見えやすいと思います。
あとは、ランニングコストが嵩みますね。近隣の築浅マンションは、2~3万円前後が一般的ですが、当タワーは初年度から5万円超え。土地の固定資産税がかからないなどのメリットもありますが、固定資産税のインパクトは建物の方が大きいので、それで相殺されるわけではありません。特に修繕積立金、借地賃料は、将来に向けて改定(上昇)余地もあります。ただ、当タワーは「転借地権方式」で売主最大手の3社が土地貸主となるため、約70年間にわたって関わってくれる安心感はあります。
これだけの最新の設備、利便性の高い共用施設の数々、安心、安全性を高めた免震構造、快適な内廊下でのタワーライフには当然コストがかかります。
都心部のタワーであれば、所有権でも初年度から5万円を超えるタワーは多く、近郊の足立区でも、分譲中の「シティタワー綾瀬」の70㎡前後の管理費は4万円近く(㎡550円)、ランニングコスト全体で初年度から4万円台後半ですから、本物件のランニングコストが割高なわけではありません。特に、管理費は抑えられています。70㎡前後の住戸で管理費2万円前後は破格(㎡308円)。しかも住人の面倒を軽減してくれる第3者管理です。大規模や自走式駐車場でコストを抑えている恩恵だと思いました。
いずれにしても、月々の適正な住居費は、ランニングコスト含めてみなければいけませんので、ローン支払額と合わせて、無理をしない借り入れを心がけたいですね。
以下は主な共用施設。
◆1階
コンシェルジュカウンター
ラウンジ、キッズスペース
ワーキングラウンジ、会議室(2部屋)、フォンブース、個室ブース(5か所)
共用トイレ、ベンダーコーナー
ゲストルーム(2部屋)
ランドリールーム
メールコーナー、宅配ロッカー、食配ステーション
来客用自転車置場、来客用駐車場
◆27階
スカイラウンジ
開発規模、タワーの安心感、利便性だけでなく、居住性の高さも本物件の大きな価値、魅力。主な販売住戸、間取りは以下です。
◆南向き
S78KIタイプ 78.22㎡
7階 8,360万円(坪単価353万円)
10階 8,390万円(坪単価355万円)

(出典:リーフシティ市川 ザ・タワー 公式HP)
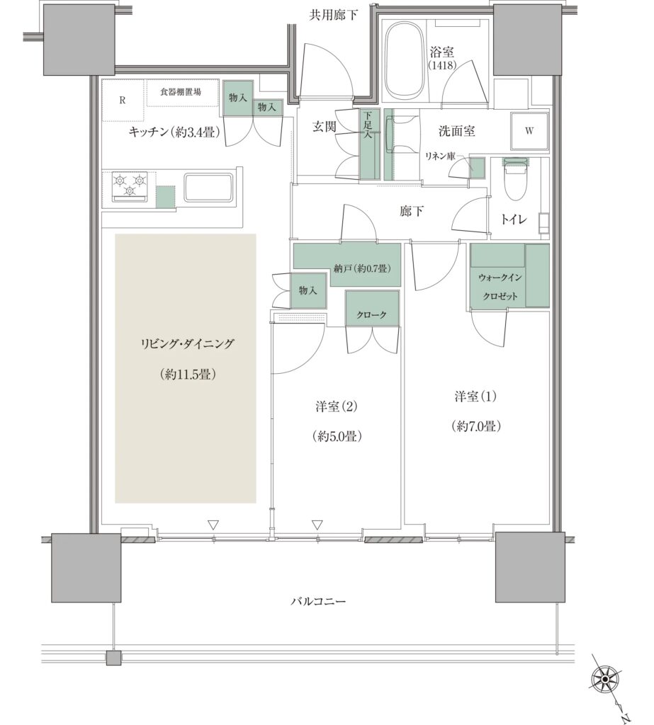
モデルルームのS78K2タイプを反転させたタイプ。一般的なマンションでは開口部に間口を広げたワイドパン住戸は非常に希少ですが、本物件では他にもワイドスパンが多く設定されています。そして、子供が大きくなって荷物が増えてくると実感する広さもしっかりとれている住戸が多いです。
S72F2タイプ 72.90㎡
6階 7,720万円(坪単350万円)
17階 7,930万円(坪単価360万円)

(出典:リーフシティ市川 ザ・タワー 公式HP)
内廊下設定にもかかわらず共用廊下側に窓がある面白い間取りです。吹き抜けになっている箇所を窓に充てています。スパンはありませんが、玄関から住戸内に向けて廊下をクランクして入っていく住まいの奥行き感が感じられ、プライバシー性も高い住戸です。
◆北向き
N72Gタイプ 72.98㎡
4階 7,020万円(坪単価318万円)
19階 7,310万円(坪単価331万円)

(出典:リーフシティ市川 ザ・タワー 公式HP)
N64Bタイプ 64.21㎡
5階 5,740万円(坪単価296万円)
23階 6,350万円(坪単価327万円)

(出典:リーフシティ市川 ザ・タワー 公式HP)
N43C2 タイプ 43.2㎡
3階 3,990万円(坪単価305万円)
19階 4,450万円(坪単価341万円)

(出典:リーフシティ市川 ザ・タワー 公式HP)
大規模タワーの1LDKがこの価格です。3千万円台から4千万円台前半。
◆北東角
NE83Lタイプ 83.15㎡
5階 8,970万円(坪単価357万円)
7階 8,990万円(坪単価357万円)

(出典:リーフシティ市川 ザ・タワー 公式HP)
各方角の角住戸は、L字コーナーサッシを採用しているのが見どころです。違うタイプでモデルルームがあるので、圧倒的な解放感を体感してみてください。


(出典:リーフシティ市川 ザ・タワー 公式HP)
前述の通り、平均坪単価は約350万円(最新の販売住戸、価格はマンションギャラリーでご確認ください。公式HPにも一部掲載されています)。
南向きに単価を乗せてますね。
南向きは、冬でも床暖房がいらないくらいポカポカする日当たりの良さ。眺望は、前面にある会社の上を抜けてくるのが5,6階から。高くなるにつれて江戸川の雄大な自然が眼下に入り、遠くまで抜けたパノラマビューを楽しめます。

(出典:リーフシティ市川 ザ・タワー 公式HP)
北向きも抜け感があり、南から照らした住宅地や、駅前のタワーマンション「ザ・タワーズ」に当たって反射した関節光がこちらを照らすので、明るい住空間になるはずです。こちらも5,6階くらいから抜け感が出てきそうです(ギャラリーで要確認)。
LDの天井高は2600mmとサッシ高2100mmは、室内の広さだけでなく頭上も広々して解放感や採光条件が違ってきます。これだけの天井高を確保して二重床もばっちりです!この辺の空間設計はタワーならでは。一般的なマンションと比べてみてください。
一方、設備仕様は、都内で分譲されているタワーと比べてしまうとそれほど高スペックではありません。それでもディスポーザ完備は嬉しい設備。他、食器洗い乾燥機、リビングダイニングにTES温水式床暖房、トイレ手洗いカウンターなど最新の設備が整っています。ただ、玄関にカメラ付きインターホンは欲しかったですね。
月々のランニングコストです。
N72Gタイプ(72.98㎡)
管理費、22,550円
修繕積立金、10,070円
賃料、6,800円
月額解体準備積立金、14,800円
月額合計、54,220円
簡単ですが、物件の特徴は以上になります。
70㎡超の3LDKが7千万円台は、なかなかの驚きでした。
定期借地権なので、以前から安いのは知っていたのですが、2025年も新築マンション価格は大きく上がっている中で12月になり、検討しやすくなってきていると感じます。お隣の小岩で分譲中のタワーが坪単価500万円台まで上がり、船橋の発表されたタワーも坪単価は平均で550万円とも600万万円とも聞きます。コスト高騰を受けて暗礁に乗り上げた再開発物件や開発着手を後ろ倒しする物件も増えています。
この価格でこのタワーに住めることに大きな魅力を感じました。
たくさんの関わる人、葉っぱが合わさる街をつくっていく「リーフシティ」のネーミングも良いですね♪
近くの「大洲小学校」(徒歩分)はとても雰囲気が良く、通学環境も良好。棟内で同じ幼稚園や小学校に通う友達、両親の知り合いがたくさんできるでしょう。街区の中には大型の広場もできるので、仲が良い近所のママ友や友達と広場で喋ったり。居住者同士、近隣住人とのコミュニティがたくさん生まれるんだろうなと想像していました。



(出典:リーフシティ市川 ザ・タワー 公式HP)
子供が小さい時は、棟内のキッズスペースで仲良くなった親子さんと楽しい時間を過ごし、天気が良い日は河川敷まで散歩に行くでしょう。そして、在宅ワークができる施設が豊富なのが非常に良いです!駅周辺までいかなくても、会議も電話もパソコン作業も快適な在宅ワークの環境が棟内に用意されています。「イオンスタイル」のカート置き場が敷地内に用意されるのも一体開発ならでは。複合施設が隣にあると、普段は忙しいお父さんも一緒にスーパーに行ったりします。必要以上に家族全員でなんとなくスーパーに行く。これも楽しい家族体験。

(右手が建設中の「リーフシティ市川 ザ・タワー」
街開きに始まり、卒業や入学シーズン、市川の花火大会、ハロウィン、クリスマス、この一体開発「リーフシティ」が季節のイベントを彩り、普通のマンションでは得られない思い出をたくさんつくってくれるはずです。
行ったことがない方は、「幕張ベイパーク」や「晴海フラッグ」を訪れてみてください。三井不動産や自治会が主体となって、季節ごとにイベントの開催を通じて「街」を盛り上げています。もちろん「リーフシティ」はそれほどの規模はありませんが、入居後の楽しそうな生活を想像できると思います(本物件で実際にイベントが企画されているかは不明です)。

(出典:物件エントリー者限定WEBサイト)
「リーフシティ市川 ザ・タワー」は、大きな住まいの価値、快適なタワーライフに加え、たくさんの家族の幸せ、たくさんのコミュニティという無形の資産価値も提供してくれるタワーマンションです。


















