
(出典:アトラス上野根岸 公式HP)
今回は、東京都心部隣接ポジションに建つアトラスブランドの新築マンションを紹介します!
アトラス上野根岸
東京都台東区根岸3
JR山手線・京浜東北線「鶯谷」駅徒歩4分
東京メトロ日比谷線「入谷」駅徒歩5分
JR各線「上野」駅 徒歩12分
敷地面積:440.23㎡
建築面積:222.21㎡
延床面積:2,326.36㎡
総戸数:33戸(事業協力者取得住戸4戸含む)
専有面積:51.93㎡ ~ 52.95㎡
駐車場台数:2台
用途地域:商業地域
売主:旭化成ホームズ
販売代理:旭化成不動産レジデンス
施工:紅梅組
竣工日:2027年4月下旬予定
入居予定日:2027年6月下旬予定

(出典:アトラス上野根岸 公式HP)
「アトラス上野根岸」は山手線駅徒歩4分、複数路線を利用できる都心立地。徒歩圏でビッグターミナルの上野駅も使えるので、出張や旅行など自宅からスーツケースを持ってのお出かけ、帰宅時も非常に快適。ライフスタイルが広がるポジションです。
鶯谷駅最寄りはテンションが上がらないかもしれませんが、昔と比べるとラブホテル街の印象が薄れ、都心回帰が進むにつれ、駅周辺のマンションも増えています。



博物館や美術館、動物園など様々なスポットが集まる「上野恩賜公園」が徒歩10分圏。浅草も近く、芸術や歴史風情、下町の雰囲気が好きな人にはたまらないポジションです。常に日本の文化発信に触れられる界隈。休みの日は上野公園を散策し、たまに好みの美術展を鑑賞してからカフェでゆったりする贅沢な時間。「東京国立博物館」(11分)や「東京都美術館」(徒歩16分)、「国際こども図書館」(徒歩16分)などにもレストランやカフェが併設されています。


ミュージアムショップが併設されています。

鶯谷から入谷にかけて、マンション周辺には個性的な飲食店も結構あって、お気に入りのお店を探すのも楽しそう。
日常の買い物は、品揃えが充実している「ライフ東日暮里店」(徒歩8分)か「ココスナカムラ入谷店」(徒歩5分)ですね。ココスナカムラは新鮮な野菜が豊富で弁当や総菜も安くておいしそうでした。あとは、「まいばすけっと」と「セブンイレブン」がマンションのほぼ目の前(徒歩1分)にあるので便利です。鶯谷駅そばには、生鮮食料品や総菜は売っていませんが「業務スーパー」(徒歩3分)もありますし、ドラッグストアも近くにあるので、生活するには困らない場所です。
上野駅(徒歩12分)周辺には百貨店や電気量販店、無数の飲食店などが集まっているので、自宅周辺でほぼすべての用が事足ります。仕事の帰り際に「アトレ上野」(徒歩15分)や、駅構内の商業施設「エキュート上野」(徒歩12分)で買い物をして帰宅するのも良いですね。エキュートは昨年リニューアルされ「紀伊国屋」や「ユニクロ」など新たなテナントも入りました。


(徒歩18分)
マンションが建つ場所は、お世辞にも良い住環境とは言えません。敷地の北側と南側にはマンションが並び、敷地の東側は空き地ですが、新たにビルが建ちそう。西側には道路を挟んでホテルが建っています。日当たり重視で穏やかな住環境を好む人には向いていない環境だと思います。

ハザードマップは、若干薄い色がついているものの、すぐ隣が高台なので比較的安心して暮らせるポイントです。他、マンションを検討する際は、最低限周辺環境などを下調べしておきましょう(参考記事)。
ランドプランの素晴らしさ、専有部のスペックの高さがアトラスブランドの真骨頂。外観はコンパクトで薄めの印象ですが、隣地からセットバックしたゆとりのランドプランが目を見張ります。

(出典:アトラス上野根岸 公式HP)
道路、歩道から奥行きあるアプローチをつくり、エントランスまでのひとときを感じる邸宅観を醸成。敷地周りにぐるっと豊かな植栽が取り巻き、ゴミ置き場、駐輪場、ペット足洗い場に向かう建物脇の生活動線は、路地風のデザイン回廊を設けて戸建ての庭のような上質空間。


エントランスを横目に回廊を通りながら裏のペット足洗い場へ。裏のサブエントランスからエレベーター乗り場に回ります。私も妻と2人の時は犬を飼っていましたので、ペットと暮らす素敵な時間を過ごせそうだなと想像できました。
エントランスを入ると、石を散りばめた凝った意匠のホールも素敵ですね。

(出典:アトラス上野根岸 公式HP)
様々な生活シーンを過ごす中で、上質な時間に満たされる空間設計はさすがです。
欲を言えば、エントランスホールに来訪者応対ができるような家具を置いて機能性を高めてほしかったです。
セキュリティは、風除室とエレベーターで二重ロック、加えて玄関前。ハンズフリーキーでバッグやポケットからカギを出さずに解錠ができます。玄関のインターホンはカメラ無し。
住戸は2階からで、内廊下、全角住戸設定でプライバシー性に優れた造り。
間取りは全3タイプとも全50㎡台の2LDKです。

(出典:アトラス上野根岸 公式HP)
主な設備仕様は以下。
LDエアコン
LD温水式床暖房(CタイプはLDと洋室1)
食器洗浄乾燥機
キッチンフィオレストーン天板
ガラストップコンロLDピクチャーレール
洗面台フィオレストーン天板に陶器のボウル
ローシルエットトイレ、手洗いボウル
バスルーム1317サイズ
室内物干し金物
LD天井高、2500mm
バルコニー奥行き、1750mm
トールタイプの隔て板
など
ディスポーザーはありませんが、全体的に専有部を美しく見せるスペックの高い設備。ピクチャーレールも気が利いています。私は入居前に必ず取り付けています。浴室1317サイズは仕方ないですね。
以下、全3タイプの間取りと予定価格です(第1期2次)。
Aタイプ 52.92㎡
3階 9,300万円台(坪単価581万円)
6階 9,800万円台(坪単価612万円)
7階 10,000万円台(坪単価625万円)
9階 10,500万円台(坪単価656万円)

(出典:アトラス上野根岸 公式HP)
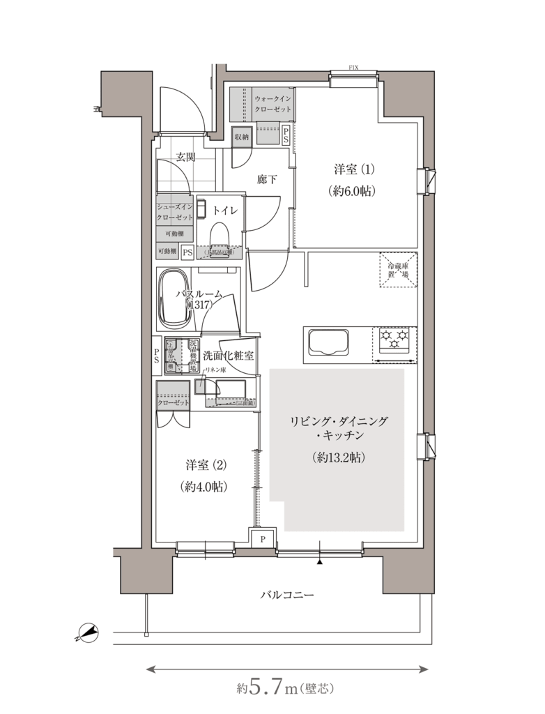
しっかりした形で居住性が高い形の2LDK。廊下をクランクインして入る設計で、玄関からLDを見られず住戸に奥行き感があります。6畳の居室がリビングアウトで、内廊下設計にもかかわらず2面採光が取れています。4畳の洋室は開けておけばLDが広い空間になり解放的な生活を楽しめます。一番選びたい間取りだと思いました。
道路を挟んでホテルがありますが、Aタイプの前面が、ちょうど建物の被りから外れたお寺の敷地でBタイプより抜け感が出てきます。午後には西から陽も入ってくるでしょう。お寺はそう簡単に無くならないと思いますので半永久的に明るい環境を維持できそうです。南側の隣地にはマンションが建っているので、10階前後から抜けてきて角の窓から採光が取れてきそうです。一番条件が良い住戸になります。
Bタイプ 52.95㎡
2階 8,500万円台(坪単価531万円)
3階 8,600万円台(坪単価537万円)
6階 9,100万円台(坪単価568万円)
7階 9,300万円台(坪単価581万円)
11階 10,100万円台(坪単価631万円)

(出典:アトラス上野根岸 公式HP)
洗面室はリビングアウトですが、好みが分かれそうな全部屋リビングインで、プライバシー性を重視する人なら落ち着かなさそうな間取り。LDも、Aタイプより使いづらそうな印象を受けました。
道路を挟んでホテルが被ってきますが、7,8階くらいから抜けてきそうです。北側の角も同様に7,8階くらいから隣地の建物の上を抜けてきそうです。
Cタイプ 51.93㎡
3階 8,200万円台(坪単価522万円)
9階 8,900万円台(坪単価567万円)
10階 9,200万円台(坪単価586万円)
12階 9,900万円台(坪単価630万円)

(出典:アトラス上野根岸 公式HP)
ワイドスパン住戸で3面採光のプラン。洋室1と洗面室がリビングアウトで、洋室2を解放してLDを広くできますし、廊下の形状も「住まい」らしくて暮らしやすそう。広々としたL字キッチンで料理も楽しくなりそうです。
Cタイプは、バルコニー前面に建物が建ちそうなので(階数不明)、かなり暗い環境になってしまうと思います。そのハンデを踏まえて近隣の中古マンションに近い価格設定。
それぞれ、最新の販売住戸と住戸それぞれの環境面詳細については、マンションギャラリーでご確認ください)。
平均坪単価は約590万円でした。
条件が良い住戸の順(ABCタイプの順)に単価が高くなっています。
すでに半数前後が販売済みでした。早いですね。
月々のランニングコストは以下です。
Aタイプ、52.92㎡
管理費、29,130円
修繕積立金、7,140円
インターネット利用料、1,155円
町会費、300円
月額合計、37,725円
管理費が㎡550円と重たく、駐輪場などを借りれば、この広さで初年度から月々4万円近くになってしまいます。
簡単ですが、以上です。
近隣では、少し前まで分譲されていた「クレヴィア上野入谷」が最終期坪単価650万円前。中古マンションは、近い条件が築10年前後でおよそ500万円前後の相場観。
あらためて、ハウスメーカーが手がけるアトラスブランドのマンションはいいですね♪どの物件も上質な造りで暮らしの満足度が高まるよう練られた企画。特に、本物件は狭小な敷地ながら工夫されたランドプランで、図面を見ながら、生活を色々想像してしまいました。
都心部での生活を思い切り満喫したいパワカ世帯、家族2人にお勧めできる新築です!
購入のご相談はこちらまで



















