外観完成予想CG
(出典:エクセレントシティ平井ザ・レジデンス 公式HP)

今回は、JR総武線「平井」駅最寄りで分譲中の新築マンションを紹介します。

物件の特徴・良さ

物件概要

エクセレントシティ平井ザ・レジデンス
東京都江戸川区平井2
JR総武線「平井」駅徒歩8分
敷地面積:879.56㎡(建築確認対象面積:873.54㎡)
建築面積:609.73㎡
延床面積:3,325.06㎡(容積率計算対象外面積704.62㎡含む)
総戸数:40戸
専有面積:35.47㎡~87.64㎡
駐車場台数:7台(平置き)
用途地域:第一種住居地域
事業主・売主・販売:新日本建設
施工:新日本建設
建物竣工予定日:2026年8月下旬
入居予定日:2026年9月下旬

現地案内図
(出典:エクセレントシティ平井ザ・レジデンス 公式HP)

周辺環境・立地

平井は、江東区に隣接した都心近接ポジション。最寄りのJR総武線平井駅から秋葉原、新宿まで直通、錦糸町で乗り換えれば東京、新橋、品川、大手町、渋谷方面など主要部までスムーズに移動が可能です。ただし、JR総武線は東エリアから都心部に向けた大動脈ですから、朝の通勤ラッシュは中々つらいものがあります。

ビッグターミナルの錦糸町や、大規模開発が進行中の小岩などと比べると利便性や話題性の低さは否めませんが、駅周辺には使いやすい商店街があり、河川に囲まれて自然も豊富。亀戸の大型商業施設や「東京スカイツリータウン」など近隣のスポットにも近い平井は、繁華街の喧騒が苦手な人にとって、ちょうど暮らしやすいエリアです。

平井駅(徒歩8分)
平井親和会商店街(徒歩2分)

本物件は、商店街を通る駅徒歩8分の利便性が高い好立地。ちょうど商業地域から抜けた住居地域で、複数のスーパーなど商業施設が近くに集まりながらも、明るく開けた穏やかな住宅地です。歩きやすい動線で夜遅い帰宅時も安心感があります。

マンション現地

主な徒歩10分以内の商業施設。

セブンイレブン平井駅通り店(徒歩3分)
コモディイイダ平井店(徒歩3分)
オリンピック平井店(徒歩3分)
ローソンストア100平井店(徒歩4分)
ドラッグセイムス平井4丁目店(徒歩5分)
サンドラッグ平井店(徒歩5分)
ダイソー平井店(徒歩5分)
ファミリーマート平井三丁目店(徒歩6分)
ローソン江戸川平井三丁目店(徒歩7分)
まいばすけっと平井1丁目店(徒歩7分)
シャポーロコ平井(徒歩8分)
 ※平井駅直結の商業施設
平井中村屋小松川店(徒歩9分)
ビッグ・エー江戸川小松川店(徒歩9分)
HIRAI TERRACE(徒歩9分)
 ※「プラウドタワー平井」併設の商業施設
西友平井店(徒歩10分)

通学区の小中学校
小松川小学校(徒歩2分)
 ※2030年~移設(徒歩5分)
小松川第二中学校(徒歩12分)

小学校が近く、放課後や休日の学童保育「すくすくスクール」も併設されています。「平井公園」(徒歩5分)や、エリアの一大スポット、広大な「大島小松川公園」(徒歩11分)も近く、子育てに適した場所です。

大島小松川公園(徒歩11分)

平井エリア一体は、河川に囲まれ、万が一の際の洪水、また高潮時など浸水リスクが高いエリアなので、日々防災意識を高めて住みたい場所。他、マンションを検討する際は、最低限周辺環境などを下調べしておきましょう(参考記事)。

ランドプラン・共用部

小規模レジデンスの本物件。主だった共用施設はありませんが、エントランスホールには待ち合わせで使えそうなソファが設置される予定。そして大きな特徴は内廊下設計。エントランスを入れば、住戸まで風雨に晒されない快適性とプライバシー性が高い空間になっています。

1階平面図
(出典:エクセレントシティ平井ザ・レジデンス 公式HP)

A、内廊下
B、オートロック(ハンズフリー解錠)
C、宅配ボックス
D、平置き駐車場
E、EV・PHEV充電器
F、自転車置き場
G、ゴミ置き場(24時間利用可能)
H、ペット足洗い場

エントランスアプローチ完成予想CG
エントランスホール完成予想CG
(出典:エクセレントシティ平井ザ・レジデンス 公式HP)

他、共用施設としてはメールコーナー・宅配ボックス、24時間対応のごみ置場、防災倉庫、ペット足洗い場などが設けられます。

自転車置き場は屋外、駐車場は7台だけですが全台平置き。EV充電用コンセントもいくつか設置されます。

セキュリティは風除室前のオートロック1か所と、玄関前。

住空間の特徴・設備仕様

専有部のスペックは、高位平準化されたエクセレントシティシリーズの安定感があります。

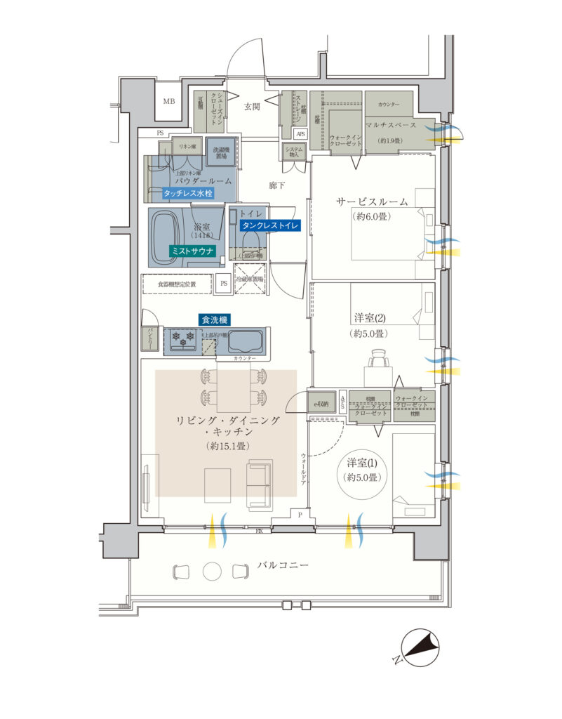
LDにはガス温水床暖房。キッチンには食器洗い乾燥機が標準装備。洗面台のタッチレス水栓が良いですね。浴室にはミストサウナがついています。トイレも、タンクレストイレに手洗いカウンター設置で、すっきりした清潔な空間。

天井までのウォールドアは、LDと隣の洋室のシームレスな広々空間をつくります。サッシはLow-E複層ガラスを採用。LDの天井高は2350mm~2400mmとちょっと低めですが、二重床・二重天井でしっかりした造り。

バルコニーの奥行きは1750mm、1階住戸は1タイプを除いて専用庭が用意されています。

また、本物件は「ZEH-M Oriented」認定で、断熱性、省エネ性を高いレベルで実現。

100戸近い南千住や瑞江の分譲でディスポーザーが標準だったエクセレントシリーズですが、残念ながら本物件ではありません。

住戸は、南東向きと北西向きの設定。敷地南側は低層の住宅が並び、4階くらいから抜けてきそうです。敷地の北側は幅員が広い道路に面しています。一部6階建てのマンションなど前建てもありますが、20m前後の離隔が取れているため明るい住環境を形成しています(将来まで保証されたものではありません)。

南東側の環境
(右手が建設中のマンション)
北西側の環境
(右手が建設中のマンション)

間取りは1LDK~4LDKの設定。

主な間取り・販売価格

以下、主な間取りと価格帯です。

Bタイプ、63.16㎡
2階、7,999万円(坪単価418万円)

Bタイプ、63.16㎡
(出典:エクセレントシティ平井ザ・レジデンス 公式HP)

Cタイプ、75.45㎡
階数不明、9,799万円(坪単価429万円)

Cタイプ、75.45㎡
(出典:エクセレントシティ平井ザ・レジデンス 公式HP)

Dタイプ、74.81㎡
階数不明、9,399万円(坪単価415万円)

Dタイプ、74.81㎡
(出典:エクセレントシティ平井ザ・レジデンス 公式HP)

E2タイプ、55.8㎡
階数不明、6,999万円(坪単価415万円)

E1タイプ、55.8㎡※E2とほぼ同タイプ
(出典:エクセレントシティ平井ザ・レジデンス 公式HP)

Gタイプ、46.27㎡
階数不明、6,299万円(坪単価450万円)

Iタイプ、78.6㎡
5階、11,499万円(坪単価483万円)

Lrタイプ、87.64㎡
7階、12,499万円(坪単価471万円)

平均坪単価は430万円前後です(最新の販売住戸、価格帯はマンションギャラリーでご確認ください)。

70㎡台の3LDKは、内廊下設計が影響してか、面積の割にLDが若干手狭なのが惜しいところ。ただ、収納も、各居室のゆとりもありますので、家族4人想定で暮らせます。

Bタイプの3LDKは、実質家族3人向きですが、開口部に向けたワイドスパンの間取りが良いですね。

最後に・まとめ

少しまで穴場だと思っていた平井エリアですが、相場が上がってきました。エリア内では「シティハウス平井」が近い価格帯で分譲中。築10年の中古マンション「シティテラス平井」(同じく徒歩8分)も坪単価370万円前後まで上がってきました。

以下は、沿線で分譲中のマンション坪単価(およそ)。

シティタワー錦糸公園(750万円)
パークホームズ錦糸町北斎通り(630万円)
アトラス亀戸レジデンス(550万円)

川を渡った亀戸駅の最寄りでは「アトラス亀戸レジデンス」が坪単価550万円ですから、当然この価格では買えません。江東区アドレスの「ザ・パークハウス亀戸九丁目」が坪単価460万円で比較的近い価格ですが、パークハウスは都営新宿線沿線で、本物件は人気の総武線沿線。

近隣の「シティハウス平井サウス」が完売になり、新築供給も少なくなってきていますから、現実的に70㎡超の3LDKが1億円を切って検討できる貴重な新築。上記、沿線の分譲と比べて条件面が気に入れば、検討が進みそうです。

購入のご相談はこちらまで

すまいよみ 住まいの無料相談

Xでフォローしよう