
このデベロッパーからであれば、心地よく暮らせる住まいを手に入れることができます!消費者目線で暮らし心地を追求し続けるマンションデベロッパー№1を勝手に選びました。
この記事の目次
マンション事業と居住者ファーストを両立させるデベロッパー
現代のマンション事業はコストが高く、利益率が悪いと言われているため、昔のマンションと比べてコストカットに走る物件が増えました。例えば間取り。効率的に住戸を提供するためのデベロッパー都合上、以下2点のような、住居幅が6メートルスパンの間取りにほぼ集約されてしまいます。

決して暮らし心地が快適とは言い切れない空間。

① 住戸壁面積に対し窓が少なく小さめ
② 両側が壁に囲まれて開放感がない
③ 長方形の居室が増え、使い勝手が制限される
④ 廊下のような生活に使用できないデッドスペースが増えてしまう。
⑤ クローゼットや下駄箱の収まりの悪さが部屋の使い勝手を悪くしてしまう。
⑥ 柱の室内への浸食が部屋の使い勝手を悪くしてしまう。
⑦ 玄関からLD住戸奥まで見渡せることで住戸の奥行き感がない。
⑧ 玄関側の部屋が共用廊下部分である場合が多く暗くなりがち
そのようなマンションの事業特性を抱える中、もちろん、『家づくり』の視点で間取りを設計し快適な住環境を提供してくれる、マンションデベロッパーはたくさんあります(関連記事)。
その中でも、すまいよみがファンと公言してやまない、家族を幸せにする住空間を提供してくれるマンションアワードを勝手に選びました。
暮らし心地No1ブランドは「イニシア」!
私のNo1!は、「イニシア」ブランドを手掛けるコスモスイニシア(公式HP)。
理由は以下です。
すべての物件に徹底されたコンセプト
一番大事なことです。物件によって気まぐれに提供されるのではなく、イニシアは、「すごしかたファースト。」という住まいのコンセプトをもとに、新築マンションにおいては、以下の住空間品質を「すべての物件」の間取りに落とし込んでいるのです。

居住性が高い間取り
設計先ほど記載の決して快適ではない空間から解放された、3つの居住空間設計がほぼ全ての物件に適用されています。
① 6.4メートル以上のワイドスパン(住戸幅)
② アウトポール設計
③ ライフスタイルを広げる間取り
デベロッパーにとっては非効率的な空間設計になるものの、居住者にとっては、部屋の使い勝手、暮らし心地の向上につながるのです(詳細は前回記事)。
全ての物件に徹底して落とし込む、暮らし心地向上にこだわった間取り設計。大手のデベロッパーでは、物件の規模、企画の力の入れよう、ゼネコン委託都合などによって、間取りや住空間設計については、必ずしも居住者ファーストとは言い切れない物件が混在しています。しかしながら「イニシア」は、様々な建設会社に建築を委託する際も全てコンセプトを共有、徹底した上で「居住者ファースト」の間取りを作り上げ、HPをみても、物件資料を見ても、住まう人に対する「愛」が感じられます。
「イニシア」ブランドの間取り集
分譲済みの物件の間取りを、いくつか取り上げてみました。間取り図は各物件の公式資料より出典しています。今回の記事を書くにあたり、コスモスイニシアより、物件資料の私的利用およびブログでの公開を正式に認めていただきました。この対応もとても親切で、ますます僕はイニシアマンションのファンになってしまいました。
・イニシア浦安グランドプレイス
・イニシア日野
・イニシア港北ニュータウン
・イニシア武蔵新城テラス
・イニシア志木
・イニシア西新井
・イニシア田端ツインマークス
・イニシアクラウド渋谷笹塚
イニシア浦安グランドプレイス
B2タイプ(70.30㎡)

ワイドスパンにより・・・
① 推定7m以上のワイドスパン(住戸幅)により、住戸全体の開放感が出る
② クローゼットや下駄箱を居室外に配置でき、部屋の使い勝手が向上する
③ 正方形に近い部屋になり、家具の配置などがしやすくなる
④ 廊下の幅が広くなり、客人の出迎えなど使い勝手がよくなる
⑤ キッチン横廊下のようなデッドスペースが少なくなる
⑥ 居室の扉を引き戸にすることにより、扉の軌跡分のデッドスペースを有効活用できる
⑦ 横広ワイドリビングと洋室をゆったり並べた空間設計ができる(日当たり、採光が良い部屋が増える)
柱の室内への浸食がないため・・・
⑧各居室が整形の部屋になり、使い勝手が格段に良くなる
他、素敵な(面白い間取りの)ポイント
⑨出し入れができるトールスライドウォールにより柔軟な空間利用ができる
⑩連窓サッシによって、洋室を開けた時の採光、開放感が抜群
イニシア日野
Aアタイプ(75.46㎡)

8.5メートルものワイドスパンにより・・・
① 住戸幅が広がり開放感がある
② クローゼットや下駄箱を居室外に配置でき、部屋の使い勝手が向上する
③ 廊下の幅が広くなり、客人の出迎えなど使い勝手がよくなる
④ 3つの部屋を横並びに配置でき、各居室の採光、日当たりに貢献
柱の室内への浸食がないため・・・
⑤各居室が整形の部屋になり、使い勝手が格段に良くなる
他、素敵な(面白い間取りの)ポイント
⑥玄関からクランクイン廊下の採用で、LDや各居室のプライバシーが守られる
⑦出し入れができるトールスライドウォールにより柔軟な空間利用ができる
⑧ 連窓サッシによって、洋室を開けた時の採光、開放感が抜群
Bタイプ(60.75㎡)

2LDKだって、手を抜かずに、7.5メートルのワイドスパンで使い勝手の良い間取りを実現しています(関連記事)。
イニシア港北ニュータウン
B5タイプ(75.04㎡)

推定7m以上のワイドスパン(住戸幅)により・・・
① 住戸幅が広がり、開放感が生まれる
② クローゼットや下駄箱を居室外に配置でき、部屋の使い勝手が向上する
③ 正方形に近い部屋になり、家具の配置などがしやすくなる
④ 廊下の幅が広くなり、客人の出迎えなど使い勝手がよくなる
⑤ キッチン横廊下のようなデッドスペースが短くなる
⑥ 居室の扉を引き戸にすることにより、扉の軌跡分のデッドスペースを有効活用できる
柱の室内への浸食がないため・・・
⑦各居室が整形の部屋になり、使い勝手が格段に良くなる
他、素敵な(面白い間取りの)ポイント
⑧アイランドキッチンの配置により、開放的なLDK空間を選出
⑨ 出し入れができるトールスライドウォールにより柔軟な空間利用ができる
⑩連窓サッシによって、洋室を開けた時の採光、開放感が抜群
イニシア武蔵新城テラス
Aタイプ(73.53㎡)

他物件と同じような特徴を持ちますが、横入玄関で住戸のプライバシーを守り、主寝室は、ベッドスペースと、作業スペースをアトリエとして引き戸で分けた面白い空間設計です。
イニシア志木
G2rタイプ(70.13㎡)

この9.1メートルのワイドスパンで、70㎡ながら17畳のLDKは圧巻です!
E2タイプ(70.40㎡)
シンプルながら、推定6.4メートルのスパンとアウトポール設計により、全居室、正方形に近い整形の部屋を実現するなど、住み心地を追求しています。
イニシア西新井
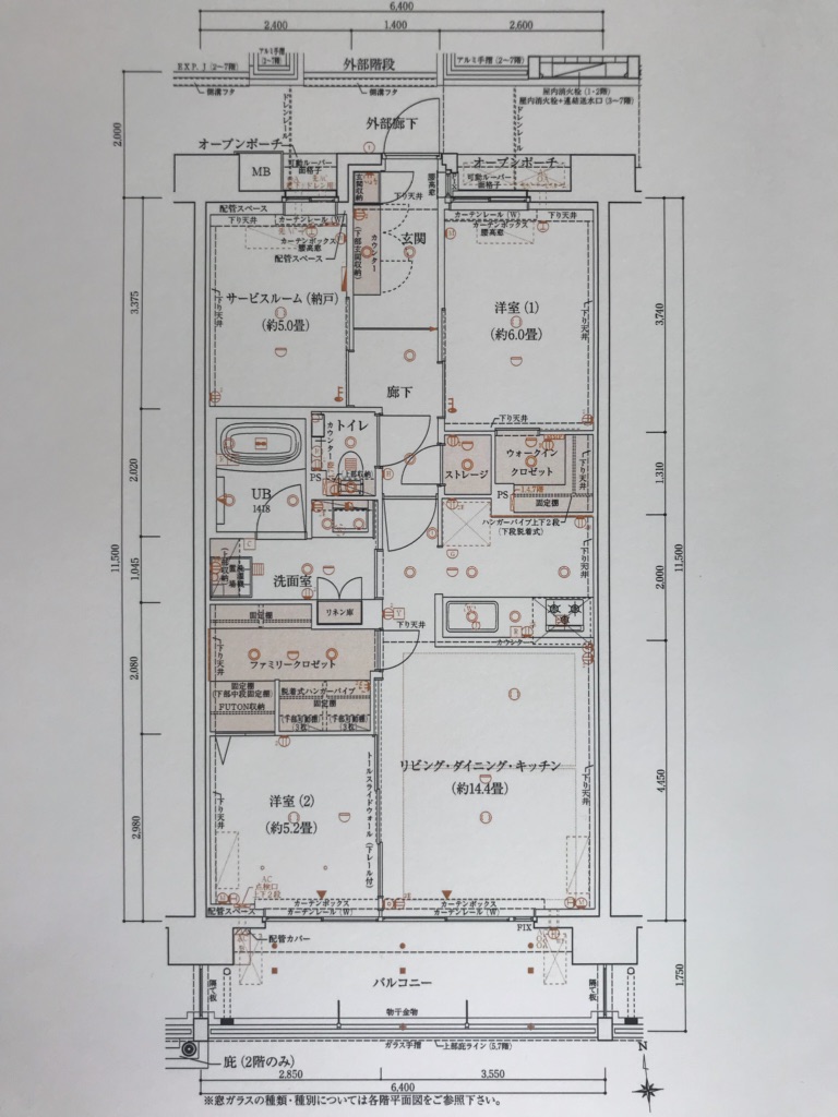
C1タイプ(74.62㎡)

こちらもシンプルな間取りながら、イニシアの空間設計が随所に詰まった6.4メートルスパンの住戸。
イニシア田端ツインマークス
W-Aタイプ(73.63㎡)
この住戸で舌を巻いたのが、洋室(1)と洋室(2)を引き戸で開放し一体化した空間にできること。通常、LDと隣の洋室の引き戸を介した空間設計はよく見られますが、洋室同士を、家族の人数や子供の年齢、使い勝手によってフレキシブルにできるプランは初めて見ました。しかも、LD側と洋室側の2面バルコニーという、とても羨ましい間取りです。
イニシアクラウド渋谷笹塚
B2タイプ(75.07㎡)
こちらも推定6.4m以上のスパンで、下駄箱やクローゼットを室外へ追いやり整形の部屋やワイドな廊下を実現。
一件長細くて使い勝手が悪そうですな住戸ですが、キッチンが今どき珍しく対面キッチンになっていないことで、柔軟なインテリアコーディネート、LDKの一体空間の演出ができます。
また、洋室(2)(3)とLDKを引き戸でつなぎ、家族のコミュニケーション豊かな空間設計をしています。渋谷区という都心の限られたスペースの中、バルコニー面積は少なくなりますが、75㎡で6,000万円代という良心的な価格とともに、イニシアのコンセプトとともに考えられた間取り設計だと思いました。
こんなソファの置き方もできちゃいます。

以上、居住者ファーストに考えられた物件の数々。すべての物件にコンセプトがしっかり落とし込まれていて、見れば見るほど唸ってしまう間取り設計。
上記のような楽しく使い勝手が良い居住者視点の間取りはそうありません。他のマンションデベロッパーと見比べてもらえば一目瞭然です。これからマンションを購入する人は、ぜひ選択肢の一つに加えていただきたいです!






















