
「シティタワー千住大橋」のオンライン事前案内会に参加しました。お薦めしたいマンションになります!
この記事の目次
マンションの概要・特徴
物件概要
シティタワー千住大橋
所在地:東京都足立区千住橋戸町
交通:京成電鉄本線「千住大橋」駅徒歩5分
総戸数:地上42階建て466戸
完成時期:2025年4月中旬予定
引渡日:2025年9月下旬予定
売主:住友不動産
施工会社:長谷工・大成 建設共同企業体

周辺環境・立地
当マンションが建つ千住大橋エリアは、「東京」駅から6.8km圏、池袋、品川、目黒、十条などと同距離の程度に位置する都心近接立地です。
「千住大橋」駅周辺には、南千住と北千住の間に計画された新たな都市拠点、「みらい千住 ポンテグランデTOKYO」が誕生し、120,000㎡超の敷地に商業施設、生活支援施設、住宅などが立ち並ぶ新しい街並みが形成されました。2022年8月現在、エリア全体の60%程度が開発され、今なお、途上の街です(ポンテグランデTOKYO公式HP)。

駅前には、大型商業施設「ポンテポルタ千住」があり、周辺住人の生活拠点に。一帯は、緑道、公園、水辺豊かなリバーサイドなど自然にも恵まれ、生活環境、子育て環境も整っています。

「ポンテポルタ千住」には、医療施設や子育てに役立つ施設も多く入居しています。

隅田川の水辺で開放的な暮らしを満喫できる絶好のロケーション


ファミリーや子供達で賑わっています!
移動には、京成本線「千住大橋」駅を利用でき、「日暮里」駅(6分)、「京成上野」駅(10分)へは直通、「日暮里」駅と「町屋」駅で乗り換えれば、「東京」駅、「大手町」駅など主要都心部各所へアクセスすることができます。
20分前後で歩ける「北千住」駅は、5路線が乗り入れるビッグターミナル。徒歩、場合によっては自転車で、直接「北千住」駅から移動する機会も増えるでしょう。
ランドスケープデザイン
断面がほぼ正方形のシンプルな外観デザインが格好良いですね。42階建ては、住友不動産で現在分譲されているタワーでも最大級の高さのようで、このリバーサイドに建てば、エリアの中でも圧倒的な存在感になりそうです。

(出展:シティタワー千住大橋 公式HP)
1階部分の「グランドエントランス(車寄せ)」は、人の乗り入れ、荷物の出し入れに便利なだけでなく、住まいの重厚感が増す大事な空間。余裕ある敷地計画の恩恵です。

(出展:シティタワー千住大橋 公式HP)
73%の空地率をほこり、住人だけが使用できるエントランスの外の「デッキテラス」に、「フォレストパーク(広場上空地)」を経て「隅田川テラス」へつづく緑景は、「千住ザタワー」や「プラウドタワー金町」では見られなかった、環境に寄り添ったタワーマンションならではの魅力があります。

(出展:シティタワー千住大橋 公式HP)
「エントランスホール」に入れば、「コンシェルジュカウンター」が設置され、日々の生活を支援してくれます。駐輪場は1階の屋外で、タワーとしては残念なポイント。駐車場は、敷地内の機械式と棟内タワーで住戸数の52%が用意されます。敷地内には、保育施設も運営されるようです。
2階部分は、1階エントランス吹き抜け部分と、主な共用施設に充てられます。
テレワークラウンジ兼集会室(個室ブース)
キッズルーム
フィットネスルーム
ゲストルーム
23階には都心部や東京スカイツリーなどを臨むスカイラウンジも!

(出展:シティタワー千住大橋 公式HP)
住戸は3階からで内廊下設計、各フロアにはクリーンステーション(ゴミ置場)が用意されます。足立区のハザードマップ上では、「荒川」が決壊したときに、最大で5m前後の浸水リスクが指摘されていますが、電気室が2階に、個別住戸も3階からの設定なので比較的安心できそうです。
間取り・予定価格は?
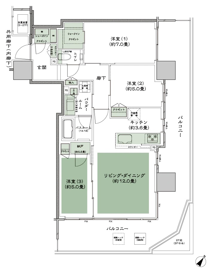
今回、間取り、設備・仕様等の詳細説明は少しだけでした。内廊下のため、窓面はバルコニー側に集中するワイドスパン住戸が多くなりそうです。住戸の向きは、南西向き、南東向き、北西向き、北東向き。
約2,600mmの天井高(LD、洋室)
梁の少ない中空スラブ工法
予定価格は発表されませんでしたが、第1期の平均坪単価を360~370万円程度と予想しました。周辺マンションの上を抜ける20階程度、70㎡住戸で7,600万円~7,800万円。
すでに建っている駅周辺の主なマンションです。
アクアヴィスタ(308戸)
オーベルグランディオ千住大橋(251戸)
オーベルグランディオ千住大橋エアーズ(280戸)
シティハウス千住大橋ステーションコート(101戸)
4棟の総戸数が900戸を越えることから、常に中古物件が売り出されている状況。
過去半年間での成約価格に大きなばらつきは無く、平均坪単価240万円(70㎡換算5,100万円前後)前後での成約が目立ちます。
「北千住」駅では、徒歩7分の「イニシア北千住レジデンス」が坪単価370万円前後で新築分譲されています(22年8月25日現在)。
同駅の中古では、駅徒歩5分の「パークホームズ北千住アドーア」が同じく坪単価370万円程度。
「綾瀬」駅では、「シティハウス綾瀬」が坪単価350万円前後で分譲されています。「シティタワー綾瀬」は坪単価400万円前後を狙っているはず。
千住大橋の中古マンションと大きく乖離が出るため、この価格で検討が進むか疑問ですが、住環境が良いリバーフロント、都心部と比べて相対的に相場が低い城東エリアのタワー物件は、広域からも注目、人気を集めそうなことも踏まえました。
シティタワー千住大橋 メリット
生活利便と豊かな自然
一帯の新しい街並みと公園や「千住隅田川テラス」などの豊かな自然が千住大橋エリアに住む大きな魅力。最開発エリアで住宅も新しく、若いファミリーが元気に暮らし、子育てのしやすさを実感できるエリアになっています。「北千住」駅、「南千住」駅周辺の大型商業施設も生活圏で、大きな買い物も徒歩、自転車で済ませることが可能です。
リバーフロント一等地の住環境
大通り、電車の騒音から入った環境で、再開発街区の中でも閑静で明るい隅田川最前線のポイントも大きな強み!隣の「アクアヴィスタ」「F街区」と並んで、南向きが開放された最高の一等地です。水辺の潤いや空を身近に感じられる開放感に満ちあふれた中での明るい生活が約束されています。

大規模ランドスケープを活かした豊かな生活
駅直結マンションのように利便施設には隣接していませんが、「テレワークラウンジ」「フィットネスルーム」などの便利な施設や、下層階の住人も楽しめる「スカイラウンジ」など、大規模タワーならではの特徴が光ります。42階建てのタワーで実現した、眺望、南向きに開けた開放感が、周辺の板状マンションでは中々体感できない、当マンションならではの大きな魅力。
城東エリアにおいて、タワーマンションの魅力、利便性と、住環境の良さを両立できる強みが、「シティタワー千住大橋」の最大のメリットだと考えます。
シティタワー千住大橋 デメリット
主要都心部への機動力が劣る
エリア的には、「北千住」駅や「南千住」駅を利用することで、交通利便性は比較的高い都心に近接したポジションです。ただし、京成本線の1路線、要所への直通移動が限られる「千住大橋」駅は、日中10分間隔の時間帯もあり、都心部へ直結している路線と比較すると機動力で見劣りします。
一部の低層階の住空間
敷地東側に「アクアヴィスタ」(16階建て)、北側に「オーベルグランディオ千住大橋」(15階建て)と「オーベルグランディオ千住大橋エアーズ」(15階建て)があるため、その階数前後の住戸までは、眺望が被ってしまったり、空が抜けてこない住戸があります。北西向き、北東向き住戸設定もあるため、眺望、日当たり重視の人は、モデルルームで住戸位置をよく確認しながら検討したいです。

(右手が「アクアヴィスタ」、左手が「オーベルグランディオ千住大橋」
あとは、詳細な間取りと最新の設備、ランニングコストなどが気になりますね。
まとめ・最後に
新しい街並み、自然豊かなリバーサイド。楽しく明るくファミリーで生活する想像力が大きく湧いてくる場所での、付加価値の高い高層タワーレジデンス。個人的には、交通は若干不便だけれども、綺麗な街並、人、水辺、環境に寄り添ったタワーの特徴など、江東区の湾岸エリアのタワーマンションの住みやすさと重ねて見ていました。
事前案内会で説明された企画段階ですが、強くお薦めしたいマンションです!(価格発表を待ちましょう・・・)
22年9月25日追記、第1期予定価格、2回目のオンライン事前案内会
2回目のオンライン事前案内会に参加しました。
1回目では提示されなかった第1期の予定価格と、ランドスケープデザインの追加詳細、主な間取りが説明されました。
今回紹介された67㎡前後の中住戸は、8m以上のワイドスパンを採用し、LD12畳以上のリビングを確保した効率的な間取り。居住性の高さが魅力です。公式HPに間取り図がアップされたら、あらためて間取りの良さを共有します。
第1期は、南東向き、南西向きの高層階からの売出しになります。つまり、当タワーで一番条件が良い住戸位置からという、住友不動産の常套的な売出し方法。
主な予定価格です。
◆西角
Aタイプ(75.80㎡)
24階、9,900万円(坪単価431万円)
30階、10,100万円(坪単価439万円)
39階、10,400万円(坪単価452万円)
◆南西向き
Cタイプ(67.44㎡)
24階、7,800万円(坪単価381万円)
30階、8,000万円(坪単価391万円)
39階、8,200万円(坪単価401万円)

(出典:シティタワー千住大橋 公式HP)
◆南角
Dタイプ(75.55㎡)西角住戸
24階、11,400万円(坪単価498万円)
30階、11,600万円(坪単価506万円)
39階、11,800万円(坪単価515万円)

(出典:シティタワー千住大橋 公式HP)
◆南東向き
Fタイプ(67.48㎡)
24階、8,400万円(坪単価410万円)
30階、8,600万円(坪単価420万円)
39階、8,800万円(坪単価430万円)

(出典:シティタワー千住大橋 公式HP)
Gタイプ(54.99㎡)
24階、6,900万円(坪単価414万円)
30階、7,000万円(坪単価420万円)
39階、7,200万円(坪単価432万円)

(出典:シティタワー千住大橋 公式HP)
◆東角
Hタイプ(75.68㎡)西角住戸
24階、10,600万円(坪単価462万円)
30階、10,800万円(坪単価470万円)
39階、11,000万円(坪単価479万円)

(出典:シティタワー千住大橋 公式HP)
当初予想していた坪単価360~370万円程度をはるかに上回る価格でびっくりしましたが、予算が届く方なら、第1期は住まいの満足度が高い住戸から選べます。南角、東角、西角、南東向き中住戸、南西向き中住戸の順に単価を高くしていますが、南西向きの中住戸であれば、しっかり眺望と日当たりが取れた南側リバーフロントで条件が良く、比較的検討しやすいと感じました。
想像を超える価格でしたが、このエリアの中で、大規模、42階建ての高層タワーの住空間など、単価なりの企画であることも確かで、エリアでは珍しく、高いけど付加価値が高いレジデンスになります。
今までは相対的に東側エリアが低かったわけですから、単に価格を引き上げるだけではなく、上質な住まいがエリアの人気を引き上げてくれることは望ましいことだと思います。
この後のスケジュールは、実際のモデルルーム訪問、希望住戸の申し込みへと入っていきます。
23年6月23日追記、第1期価格
前年説明を受けた予定価格時より下がりました。特に、Hタイプ、Fタイプあたりは坪単価40万円、グロスで数百万円~1,000万円位の下げ幅。タワー、ワイドスパンの3LDKの高層階が7千万円台後半なら、少し検討しやすい価格になったかと思います。
◆東角
Hタイプ(75.68㎡)西角住戸
28階、9,700万円(坪単価423万円)
37階、9,900万円(坪単価431万円)
◆南東向き
Eタイプ(67.45㎡)
29階、7,700万円(坪単価376万円)
38階、8,000万円(坪単価391万円)

(出典:シティタワー千住大橋 公式HP)
Fタイプ(67.48㎡)
23階、7,700万円(坪単価376万円)
34階、8,000万円(坪単価391万円)
Gタイプ(54.99㎡)
25階、6,200万円(坪単価372万円)
36階、6,400万円(坪単価384万円)
◆南角
Dタイプ(75.55㎡)西角住戸
29階、11,000万円(坪単価480万円)
36階、11,800万円(坪単価515万円)
23年9月10日追記、現在の価格
少し値上げしましたね。
◆南東向き
Eタイプ(67.45㎡)
6月時点
29階、7,700万円(坪単価376万円)
38階、8,000万円(坪単価391万円)
↓
9月時点
28階、8,000万円(坪単価391万円)
38階、8,200万円(坪単価401万円)
7千万円台の部屋がサクッと売れたのでしょうか。1階下の部屋を8,000万円台にして売出しています。坪単価10~15万円程上がった感じですね。このエリアの相場の推移に注目したいです。
24年4月10日追記 現在の価格
着々と成長しています。この環境で、このタワーに住める人は羨ましいです!

24年4月現在の販売価格。
Gタイプ(54.99㎡)
21階、7,200万円(坪単価432万円)
(23年6月の販売価格、25階、6,200万円)
Lタイプ(54.09㎡)北西向き
34階、6,600万円(坪単価402万円)
Mタイプ(57.1㎡)北西向き
33階、7,200万円(坪単価416万円)
Hタイプ(75.68㎡)西角住戸
32階、10,400万円(坪単価453万円)
(23年6月の販売価格、28階、9,700万円)
Iタイプ(64.79㎡)北東向き
32階、7,900万円(坪単価402万円)
Jタイプ(65.25㎡)北東向き、3LDK
33階、7,900万円(坪単価400万円)
Bタイプ(67.33㎡)南西向き
29階、8,500万円(坪単価416万円)
Cタイプ(67.44㎡)南西向き
21階、8,500万円(坪単価416万円)
Dタイプ(75.55㎡)西角住戸
29階、11,800万円(坪単価515万円)
(23年6月の価格、29階、11,000万円)
24年12月21日追記、現在の価格
Cタイプ(67.44㎡)南西向き
16階、9,200万円(坪単価450万円)
Dタイプ(75.55㎡)西角住戸
18階、12,500万円(坪単価546万円)
Fタイプ(67.48㎡)
16階、9,600万円(坪単価470万円)
Gタイプ(54.99㎡)
17階、7,800万円(坪単価468万円)
Hタイプ(75.68㎡)西角住戸
16階、11,500万円(坪単価501万円)
Mタイプ(57.1㎡)北西向き
29階、7,900万円(坪単価456万円)
Iタイプ(64.79㎡)北東向き
19階、8,500万円(坪単価433万円)
25年9月1日追記、販売中の住戸一例
Iタイプ(64.79㎡)北東向き
24階、9,100万円(坪単価463万円)
Bタイプ(67.33㎡)南西向き
24階、9,700万円(坪単価475万円)
25年9月18日追記、竣工後訪問 画像
城東ならではの自然を巻き込んだ豊かなタワーマンションに仕上がっていました!









25年11月2日追記、先着順販売住戸
現在の先着順販売住戸一例です(最新の販売住戸、価格はマンションギャラリーでご確認ください)。
Bタイプ(67.33㎡)南西向き
23 階 11,000 万円台 (坪単価 540 万円)
38 階 11,800 万円台 (坪単価 579 万円)
Cタイプ(67.44㎡)南西向き
9 階 9,700 万円台 (坪単価 475 万円)
Dタイプ(75.55㎡)西角住戸
14 階 13,000 万円台 (坪単価 569 万円)
32 階 14,800 万円台 (坪単価 648 万円)
Eタイプ(67.45㎡)南東向き
23 階 11,300 万円台 (坪単価 554 万円)
35 階 12,000 万円台 (坪単価 588 万円)
Fタイプ(67.48㎡)南東向き
15 階 10,600 万円台 (坪単価 519 万円)
Gタイプ(54.99㎡)南東向き
14 階 8,600 万円台 (坪単価 517 万円)
23 階 9,000 万円台 (坪単価 541 万円)
Hタイプ(75.68㎡)西角住戸
14 階 12,300 万円台 (坪単価 537 万円)
22 階 12,900 万円台 (坪単価 563 万円)
36 階 13,500 万円台 (坪単価 590 万円)
Iタイプ(64.79㎡)北東向き
10 階 9,000 万円台 (坪単価 459 万円)
23 階 9,600 万円台 (坪単価 490 万円)
24 階 9,600 万円台 (坪単価 490 万円)
N タイプ(55.40㎡)北東向き
20 階 8,900 万円台 (坪単価 531 万円)

(出典:シティタワー千住大橋 公式HP)
Jタイプ(65.25㎡)北東向き
39 階 10,400 万円台 (坪単価 527 万円)
Oタイプ(68.01㎡)北角
23 階 11,000 万円台 (坪単価 535 万円)

(出典:シティタワー千住大橋 公式HP)
Mタイプ(57.1㎡)北西向き
39 階 8,800 万円台 (坪単価 509 万円)
平均坪単価はおよそ540万円でした。
この数か月で5~10%以上値上げしたタイプもあります。近隣で三井の大規模再開発によるタワマンの建設計画も出ましたので、売り急ぐ必要は無いですよね。


















